Москва, ул.Левобережная

Аватара пользователя
m1az22
Заслуженный участник
Сообщения: 9188
Зарегистрирован: 13 июл 2010, 14:15

#4831

Непрочитанное сообщение m1az22 » 22 июн 2014, 12:02

А из минусов, на мой взгляд, это совмещение санузла при отсутствии возможности разместить еще один туалет
Насколько я посчитал, во входном коридоре помещается две двери со стороны санузла. Возможный вариант размещения ванной в дальнем конце санузла, размещение унитаза справа и отгораживание его перегородкой. Недостаток - трудоёмкость замены ванной, половина ванной будет в проёме между стен. Для сторонников душевых кабин возможен вариант ликвидировать ванну как класс (тогда ещё больше места).
Есть вариант размещения второго туалета с дверью во входной коридор из бывшей кухни. Чтоб не сильно красть объём гардеробной, возможно унитаз разместить боком ко входу в туалет.

Аватара пользователя
Оля
Заслуженный участник
Сообщения: 1457
Зарегистрирован: 18 мар 2010, 02:55

#4832

Непрочитанное сообщение Оля » 22 июн 2014, 12:07

Не поняла насчет туалета с дверью во входной коридор из бывшей кухни. На территории какого помещения расположится такой туалет, коридора?

Trust
Активный новичок
Сообщения: 24
Зарегистрирован: 04 июн 2014, 10:48

#4833

Непрочитанное сообщение Trust » 22 июн 2014, 12:54

Это уже реализовано. Может так нагляднее.
http://www.artteam.ru/interery/pereplan ... erii-i-155

Добавлено спустя 4 минуты 34 секунды:
На фотографиях интерьер, по моему мнению, слишком аляпистый. Я бы сделал попроще и по строже, но идея в общем понятна.

Просто песня
Заслуженный участник
Сообщения: 4349
Зарегистрирован: 16 июн 2011, 20:02

#4834

Непрочитанное сообщение Просто песня » 22 июн 2014, 13:01

Я уже целое утро ищу туалеты и ванну. Их нет на чертеже ?
Есть три ловушки сатаны, которые воруют радость и мир: сожаление о прошлом, тревога за будущее и отсутствие благодарности за настоящее.

Trust
Активный новичок
Сообщения: 24
Зарегистрирован: 04 июн 2014, 10:48

Re:

#4835

Непрочитанное сообщение Trust » 22 июн 2014, 13:13

Я уже целое утро ищу туалеты и ванну. Их нет на чертеже ?
Пройдите по ссылке выше. Там с/у совмещенный. Душ. Ванны нет, хотя при желании можно оборудовать.

Добавлено спустя 5 минут 5 секунд:
Есть еще варианты.
http://forum.levoberezhnaya.ru/index.ph ... h=91;image
http://forum.levoberezhnaya.ru/index.ph ... h=95;image
http://forum.levoberezhnaya.ru/index.ph ... h=94;image

Аватара пользователя
m1az22
Заслуженный участник
Сообщения: 9188
Зарегистрирован: 13 июл 2010, 14:15

#4836

Непрочитанное сообщение m1az22 » 22 июн 2014, 13:46

На территории какого помещения расположится такой туалет, коридора?
На территории, где располагалась кухня. Той части кухни, где идёт стояк труб для кухни (дальняя стена от лоджии). Лучше сделать вход со стороны коридора (я сначала хотел вход сделать из спальни и рядом поставить душевую кабинку - чтоб ночью не ходить по квартире - ведь взрослым людям душ нужен именно ночью).
Я уже целое утро ищу туалеты и ванну. Их нет на чертеже ?
Это то место на схеме, которое не заставлено мебелью.

Аватара пользователя
Оля
Заслуженный участник
Сообщения: 1457
Зарегистрирован: 18 мар 2010, 02:55

#4837

Непрочитанное сообщение Оля » 22 июн 2014, 14:33

m1az22,
Санузел на территории кухни невозможен, если только мы говорим о законной перепланировке.

Добавлено спустя 1 минуту 47 секунд:
Бывшей кухни, разумеется.

Добавлено спустя 24 минуты 49 секунд:
Добавлю для большей точности, что ряд условий по перепланировке верхних и нижних жилых этажей существенно отличается от стандартных (для жителей средних этажей). Я подразумеваю стандартную ситуацию, относящуюся к средним этажам, иные варианты оговариваю специально.

Добавлено спустя 6 минут 51 секунду:
Ну и опускаю как маловероятное то обстоятельство, что все соседи по стояку синхронно перенесут кухни. Тогда многое возможно :D

Защитник Отечества
Заслуженный участник
Сообщения: 5555
Зарегистрирован: 05 янв 2014, 17:09

#4838

Непрочитанное сообщение Защитник Отечества » 22 июн 2014, 14:50

Товарищи! Уже есть спец. форум "Левобережная". Будьте так любезны, обсудите там перепланировки, ещё квартиры официально не получили... :D

kvartira3O14
Активный новичок
Сообщения: 19
Зарегистрирован: 22 июн 2014, 01:12

#4839

Непрочитанное сообщение kvartira3O14 » 22 июн 2014, 16:01

Ну лично у вас-то, я полагаю, все будет точно не по быдло-моде, в вашей- то квартирке будущей ))) . Кухня будет не пластмассовая, а из массива, фартук - из флорентийской мозаики )) все утонченно будет. И вы точно знаете, что большинство ваших будущих соседей такие вот дремучие провинциалы с "залллами" и с "мамо " ))) . Забавно )))
Да вы я смотрю зрите в корень! ))))
не имётся на счет количества моих кошек, машин, комнат и лет ? бойтесь узнать правду ))) она вас убьёт.

empty73
Активный новичок
Сообщения: 19
Зарегистрирован: 10 июн 2014, 09:53

#4840

Непрочитанное сообщение empty73 » 22 июн 2014, 17:49

Добрый день!

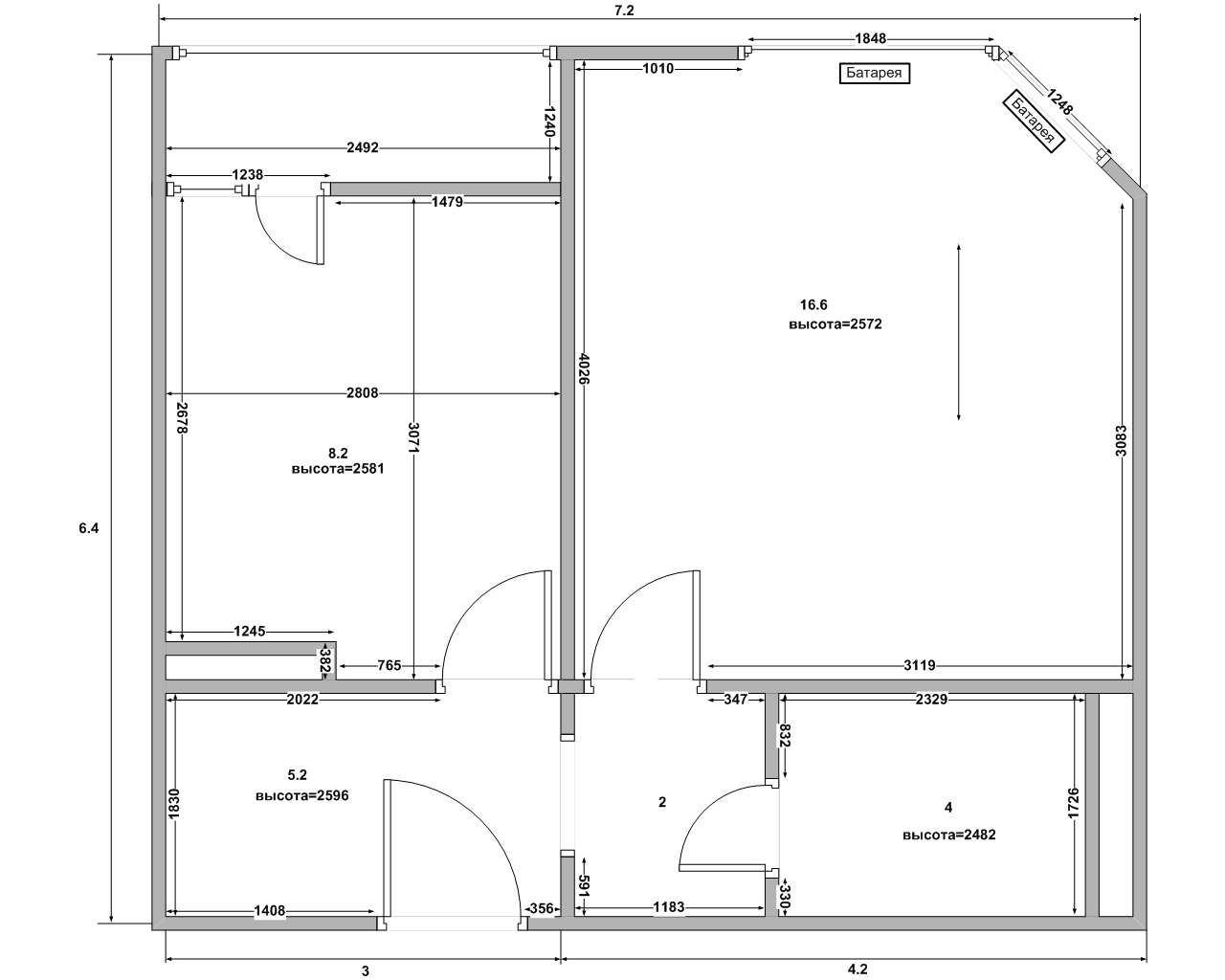
Снял размеры однушки 36 кв. метров в корпусах И-155ММ. За точность размеров гарантии нет, будут +-.., т.к. квартира еще без отделки
Размеры в мм.
Кому интересно..
Вложения
Размеры однушки 36 кв.м...jpg

Аватара пользователя
Elena-An
Заслуженный участник
Сообщения: 2799
Зарегистрирован: 15 ноя 2012, 22:16
Откуда: Москва

#4841

Непрочитанное сообщение Elena-An » 22 июн 2014, 18:43

empty73,
Это угловая?
уже поняла
"Цирк, по сравнению с нами-просто виды Палестины в волшебном фонаре." О.Генри

Antonia
Участник
Сообщения: 86
Зарегистрирован: 20 сен 2013, 13:14

#4842

Непрочитанное сообщение Antonia » 22 июн 2014, 18:44

kvartira3O14,
Да , вы правы.. И не только вы вздрагиваете от слова "зАла", применительно к типовой панельной конуре... Но как же вы согласились на молжаниново, отвергнув левобережную? Ведь в млж процент залллл по соседству с вами будет поболее, чем в Лб, и это очевидно...

empty73
Активный новичок
Сообщения: 19
Зарегистрирован: 10 июн 2014, 09:53

Re:

#4843

Непрочитанное сообщение empty73 » 22 июн 2014, 18:58

empty73,
Это угловая?
уже поняла
Там однушек угловых нет, они посередине между 2шками (или в крайних подъездах 2шками и 3шками)

Это правая квартира.. соответственно левая будет зеркальная, размеры такие же.

всёПОбарабану
Новичок
Сообщения: 1
Зарегистрирован: 22 июн 2014, 18:11

#4844

Непрочитанное сообщение всёПОбарабану » 22 июн 2014, 19:22

Добрый день!
Сдал документы в ДЖО по адресу Большой Знаменский переулок, дом 5, строение 1. Часы их работы: вторник, четверг - с 14:00 до 18:00 - эти дни для приёма извещений; вторник, пятница - с 14:00 до 18:00 - эти дни для приёма пакета документов согласно приказу МО № 1280. Пришёл туда в 14:10 и записался в очередь под 32-ым номером. Очередь двигалась достаточно быстро и в 16:00 я уже зашёл в кабинет, то есть ожидал около 2-х часов примерно. К 16:00 очередь сократилась уже до примерно 20 человек. Но ИМХО тут не угадаешь в какое время лучше приезжать, так как в другой день очередь может быть и побольше и в этом случае уже можно просто и не успеть сдать документы до закрытия. Хотя кто-то тут раньше написал, что приехал к концу их рабочего дня и очереди вообще уже никакой не было. Короче тут не угадаешь. Ещё все документы надо привозить с описью (или сопроводом на имя начальника ДЖО), либо прилагать документы к заявлению о передаче жилого помещения в собственность (просто так документы они не принимают). Ещё интересно, что мальчик, который принимает документы, у меня прямо так и спросил, какие документы я хотел бы сдать в ДЖО. А потом уже инспектор ДЖО должен мне будет перезвонить и сказать что ещё из документов нужно будет довезти дополнительно. То есть по содержанию пакета никто там вообще не цепляется - что привезёшь, то и правильно. Надо будет уже потом с инспектором все вопросы дальнейшие выяснять. Ещё один момент: в этот кабинет вся очередь, собственно говоря, именно к этому мальчику, который принимает документы. А ещё в этом же кабинете сидит девушка-юрист - так вот к ней очереди вообще нет, просто ожидающим людям в очереди надо сказать волшебную фразу: "Я на консультацию к юристу" (чтобы не дали в рыльник) и спокойно зайти в этот кабинет без очереди. Я зашёл к этому юристу с вопросом, какие документы нужно сдавать - консультация оказалась предельно краткой - в соответствии с приказом 1280 или ещё на стенде список документов висит (наверное поэтому к юристу и очереди нет). Учитывая, что к содержимому пакета документов никто не придирается, я отдал то, что у меня с собой было: заявление о передаче квартиры в собственность, заверенную копию всех страниц паспорта, заверенную копию свидетельства о браке, сведения об отсутствии собственности и копию лицевого счёта (кстати, в приказе 1280 указаны только три документа: копии паспорта, свидетельства о браке (причём незаверенные) и сведения об отсутствии помещений в собственности). Так что получается, что можно сдавать документы какие имеются, а мальчик просто только их пересчитывает по количеству страниц, ставит штампик "Принято" на втором экземпляре Вашего заявления и дальше остаётся только ждать с нетерпением звонка из ДЖО.

NaVit
Участник
Сообщения: 64
Зарегистрирован: 26 окт 2011, 16:19

#4845

Непрочитанное сообщение NaVit » 22 июн 2014, 20:29

empty73,
Спасибо за размеры, у нас такая же. Ещё не измеряли.

Ну дайте же сказать
Новичок
Сообщения: 1
Зарегистрирован: 22 июн 2014, 20:31

#4846

Непрочитанное сообщение Ну дайте же сказать » 22 июн 2014, 20:38

Ещё забыл сказать, что на Большом Знаменском переулке ДЖО только лишь арендует один из кабинетов, а вывеска на входе там: "Санаторно-курортное управление МО РФ". Просто некоторые люди пытаются занимать какую-то очень длинную очередь возле белого здания МО РФ на улице Знаменка, в которой надо стоять аж две недели, чтобы попасть в ДЖО - так вот, в эту очередь нам совсем не надо!

kvartira3O14
Активный новичок
Сообщения: 19
Зарегистрирован: 22 июн 2014, 01:12

#4847

Непрочитанное сообщение kvartira3O14 » 22 июн 2014, 23:10

. Просто некоторые люди пытаются занимать какую-то очень длинную очередь возле белого здания МО РФ на улице Знаменка, в которой надо стоять аж две недели, чтобы попасть в ДЖО - так вот, в эту очередь нам совсем не надо!
Зато длинная очередь ведет в САМО , в само Логово, где хотя бы СПЕЦИАЛИЗИРОВАННЫЕ оборудованные кабинеты, где под рукой у специалиста будет и комп с вашими данными и все что нужно. А на знаменке 5 (санаторно курортное) вас встретит пара тройка отделегированных хлопающих глазами мальчикоф и дефачик, в разбитом кабинете заваленном старыми стульями и хламом, там эти отделегированные прооосто сидят и просто собиоают с вас бумажки и даже ВХОДЯЩИЙ НОМЕР НЕ ставят (входящий можно узнать лишь через неделю, через горячую линию МО) , бумажки собирают что бы снести их в логово и сдать в отдел делопроизводства. И никакую инфу они вам сказать не могут-у них под рукой ни базы данных, ни компа , ни принтера. Та же песня с извещениями . На эту санаторно курортную знаменку , прибегают (вечно с опозданием) два отделегированных шпенделя -один забитый до ужаса еле дышит, второй не по размеру наглый и борзый, эти два коротыша притаскивают пачку заранее распечатанеых извещений - и если ваше распечатать забыли- но вы отстояли очередь- то они "ниченезнают, приходите в след.раз", принесенные извещения (согласия/отказ) они побырому собирают со всей толпы и скидывают в одну кучку которую потом также уносят в логово.

Добавлено спустя 3 минуты 11 секунд:
Да , вы правы.. И не только вы вздрагиваете от слова "зАла", применительно к типовой панельной конуре... Но как же вы согласились на молжаниново, отвергнув левобережную? Ведь в млж процент залллл по соседству с вами будет поболее, чем в Лб, и это очевидно...
Мы не согласились на Молж, а пыталмсь согласиться, тогда мы про ЛВ и не слышали. От Молж мы тоже отказались , ибо дыра-с из квариры прямо на улицу нас какбэ поднапрягла.

Добавлено спустя 16 минут 56 секунд:
НИКАКОГО ЮРИСТА на знаменке 5(санаиорно-кур) НЕТ.
Просто в 7 кабинете сидит ДВА спеца , и задуманно что один принимает док-ты , а другой ведеь разъяснительную работу (именно поэтому в каждой новой очереди, как правило и рождается легенда, что второй мистер коричневый -этоюрист) .
В реальности же - это два простых спеца из ДЖО!
Разделится на тоолько принимающего док-ты и на тооолько ведущего разъяснииелтную работу у них НЕ получается, и в итоге они оба и док -ты принимают и разъясняют какие то вопросы (разъясняют не очень компетентно из за вышеупомянутого отсутвия под рукой баз и компов) .
ТРЕТИЙ спец (как правило дефачка) это спец из ДЕПАРТАМЕНТА ИМУЩЕСТВЕННЫХ ОТНОШЕНИЙ (а не из ДЖО) и она ведет работу с теми кто УЖЕ ранее согласился на ту или иную квартиру , работает по нехватающим докуметам (называется это "работа с надостатками/возражениями"). Этот третий спец сидит также либо в кабинете номер 7 либо прямо в приемном холле, среди общей очереди и толкучки.

Добавлено спустя 3 минуты 45 секунд:
А коротыши (с пачкой извещений ) обычно забиваются в кабинет номер 6 (что символично)
не имётся на счет количества моих кошек, машин, комнат и лет ? бойтесь узнать правду ))) она вас убьёт.

tviks
Участник
Сообщения: 88
Зарегистрирован: 30 май 2014, 13:03

Re: Re:

#4848

Непрочитанное сообщение tviks » 23 июн 2014, 00:53

Так, все кто будет делать перепланеровку во 2-м корпусе ОБЯЗАТЕЛЬНО согласовывать со мной :D
Кстати, я в 10-ом.

Похож нам не повезло. С таким соседом перепланировщиком наша башня может быть и не башней.

Trust
Активный новичок
Сообщения: 24
Зарегистрирован: 04 июн 2014, 10:48

Re: Re:

#4849

Непрочитанное сообщение Trust » 23 июн 2014, 01:05

Так, все кто будет делать перепланеровку во 2-м корпусе ОБЯЗАТЕЛЬНО согласовывать со мной :D
Кстати, я в 10-ом.

Похож нам не повезло. С таким соседом перепланировщиком наша башня может быть и не башней.
Отказывайтесь. Ваше право. Я озвучил свои НЕ НАРУШАЮШИЕ ЗАКОН планы. Кто не спрятался я не виноват :jokingly:

Аватара пользователя
Hilot
Постоянный участник
Сообщения: 211
Зарегистрирован: 20 фев 2011, 10:22

#4850

Непрочитанное сообщение Hilot » 23 июн 2014, 09:33

Коллеги, подскажите, а где брать справку об отсутствия помещений в собственности и сколько на это уходит времени? (не пинайте сильно)
Несчастным или счастливым человека делают только его мысли, а не внешние обстоятельства. Управляя своими мыслями, он управляет своим счастьем.
Ф. Ницше

Михаил1966
Заслуженный участник
Сообщения: 1775
Зарегистрирован: 04 апр 2013, 09:09

#4851

Непрочитанное сообщение Михаил1966 » 23 июн 2014, 09:44

Добрый день! Сдал документы в ДЖО по адресу Большой Знаменский переулок, дом 5, строение 1. Часы их работы: вторник, четверг - с 14:00 до 18:00 - эти дни для приёма извещений; вторник, пятница - с 14:00 до 18:00 - эти дни для приёма пакета документов согласно приказу МО № 1280.
А какие документы Вы сдавали? Копию извещения и корешок №1 (№2)? Или пакет по п. 13 Пр1280? Если пакет по п. 13 Пр1280, то как с копиями паспортов? Они должны быть заверены или как? Каждый лист отдельно? Или скреплены шнуровкой, степлером?
Коллеги, подскажите, а где брать справку об отсутствия помещений в собственности и сколько на это уходит времени? (не пинайте сильно)
Берете файл и заполняете, декларируя наличие ж/п в пользовании (собственности), делегируя полномочия ДепартаментуЖО на проверку Ваших же представленных данных.

Добавлено спустя 1 минуту 4 секунды:
Пордон, но нормального файла нет под рукой
Вложения
Образей Сведений.doc
(50.5 КБ) 226 скачиваний
Имею право на собственное мнение.

kesov
Заслуженный участник
Сообщения: 713
Зарегистрирован: 15 фев 2011, 09:00
Откуда: Москва

#4852

Непрочитанное сообщение kesov » 23 июн 2014, 12:16

Вот вопросы по перепланировке
http://mgi.mos.ru/pereplanirovka/kakoformit/

GAKFIN
Заслуженный участник
Сообщения: 546
Зарегистрирован: 21 май 2012, 12:08

#4853

Непрочитанное сообщение GAKFIN » 23 июн 2014, 13:37

А оригинал справки о сдаче жилья когда отдавать? Если сразу то она и затеряться может или потом при получении ДСН?

kesov
Заслуженный участник
Сообщения: 713
Зарегистрирован: 15 фев 2011, 09:00
Откуда: Москва

#4854

Непрочитанное сообщение kesov » 23 июн 2014, 13:49

У нас народ сдает только при подписании ДСН или получении свидетельства о собственности. А так то ксерокопию, то заверенную, то нотариально заверенную. Волшебную справку все стараются держать до самого конца.

tviks
Участник
Сообщения: 88
Зарегистрирован: 30 май 2014, 13:03

Re: Re:

#4855

Непрочитанное сообщение tviks » 23 июн 2014, 14:09


Отказывайтесь. Ваше право. Я озвучил свои НЕ НАРУШАЮШИЕ ЗАКОН планы. Кто не спрятался я не виноват :jokingly:
Да это вы отказывайтесь если вас планировка не устраивает, почему это я должна отказываться интересно мне знать? Умников тут как я погляжу, советы раздавать направо и налево.

Аватара пользователя
valet
Заслуженный участник
Сообщения: 1399
Зарегистрирован: 03 мар 2010, 07:07

Re:

#4856

Непрочитанное сообщение valet » 23 июн 2014, 14:25

А оригинал справки о сдаче жилья когда отдавать? Если сразу то она и затеряться может или потом при получении ДСН?
Оригинальные документы сдавать только при получении ДСН или в собственность. А так только копии и по возможности заверить у КЧ. Я лично всегда сдаю цветную копию и нет у ДЖО вопросов. Думают, что оригинал :oops:
Если вдруг вы стали для кого-то плохим, значит много хорошего было сделано для этого человека. Лев Толстой.

NaVit
Участник
Сообщения: 64
Зарегистрирован: 26 окт 2011, 16:19

Re: Москва, ул.Левобережная

#4857

Непрочитанное сообщение NaVit » 23 июн 2014, 16:05

Кто знает, "Сведения" за последние 5лет, или за всё время?

Аватара пользователя
valet
Заслуженный участник
Сообщения: 1399
Зарегистрирован: 03 мар 2010, 07:07

#4858

Непрочитанное сообщение valet » 23 июн 2014, 16:06

за последние 5лет
остальное они сами проверят.
Если вдруг вы стали для кого-то плохим, значит много хорошего было сделано для этого человека. Лев Толстой.

NaVit
Участник
Сообщения: 64
Зарегистрирован: 26 окт 2011, 16:19

#4859

Непрочитанное сообщение NaVit » 23 июн 2014, 16:29

valet,
Спасибо, а то ещё ни разу не доходило дело до заполнения "сведений".

Михаил1966
Заслуженный участник
Сообщения: 1775
Зарегистрирован: 04 апр 2013, 09:09

#4860

Непрочитанное сообщение Михаил1966 » 23 июн 2014, 18:21

Сведения о наличии (отсутствии) жилых помещений, занимаемых по договорам социального найма и (или) принадлежащих на праве собственности военнослужащему и членам его семьи
Нашел нормальный файл
Вложения
Сведения.RTF
(35.78 КБ) 235 скачиваний
Имею право на собственное мнение.


Вернуться в «ОБСТАНОВКА С ЖИЛЬЕМ ПО ГОРОДАМ»

Кто сейчас на конференции

Сейчас этот форум просматривают: Bing и 3 гостя