Голову лучше класть дома, подальше от платформы:))mdv32 писал(а):
А кто подскажет, где солнечая сторона, где юг? Куда по фен-шую свою буйную головку ложить на сон грядущий, чтобы не было всяких дурных мыслей?.
В направлении платформы "Новопорезково".
Москва, Молжаниново, ул. Синявинская
#1861
"Цирк, по сравнению с нами-просто виды Палестины в волшебном фонаре." О.Генри
#1862
"А в Москве ГК "СУ-155" по контракту с Минобороны достраивает микрорайон Молжаниново (расположен на Ленинградском шоссе сразу за Химками и поворотом на Международное шоссе). Здесь уже построены четыре корпуса из 15 запланированных. Строительство началось в апреле 2012 года, завершится во второй половине 2013-го. По контракту с Минобороны "цена" 1 кв. м в этих домах составляет около 70 тыс. рублей. Но на рынке этого жилья не будет - все квартиры микрорайона будут "розданы" отставным военным. При нормативе предоставления жилья семье военнослужащего, состоящей из трех человек, в 65 кв. м, такая квартира (двухкомнатная) в московском Молжанинове будет стоить не больше 5 млн рублей - совершенно не столичные цены."
Читать далее - http://www.realto.ru/journal/recomm/show/?id=39508
Читать далее - http://www.realto.ru/journal/recomm/show/?id=39508
Группа военных адвокатов https://voengrup.ru/
#1863
Народ, я только что прозрел или это уже обсуждалось? Пр.1280 п.12. Не позднее чем через десять рабочих дней с даты поступления в уполномоченный орган сведений о жилых помещениях, на которые оформлены в установленном порядке права собственности Российской Федерации и которые могут быть распределены, уполномоченный орган вручает под расписку или иным способом, свидетельствующим о факте и дате его получения, военнослужащим, принятым на учет нуждающихся в жилых помещениях, извещения о распределении жилых помещений по рекомендуемому образцу (приложение N 5 к настоящей Инструкции).
Получается, что изначально ДЖО не имело право выписывать Извещения, а выписав его ОНО нарушило приказ?
Извините, если у меня позднее зажигание...
Получается, что изначально ДЖО не имело право выписывать Извещения, а выписав его ОНО нарушило приказ?
Извините, если у меня позднее зажигание...
#1864
Очень интересно.Только им?все квартиры микрорайона будут "розданы" отставным военным.
"Цирк, по сравнению с нами-просто виды Палестины в волшебном фонаре." О.Генри
#1865
Город в городе
В ближайшие годы Москва будет активно расти в сторону севера. В районе Молжаниново запланировано строительство 5 млн. квадратных метров недвижимости, из них 20% займет жилье. По сути, это будет маленький самодостаточный городок в огромном мегаполисе.
Пока Молжаниново остается одним из самых неосвоенных районов столицы: общая площадь недвижимости там составляет всего 280 тыс. «квадратов», из них жилья – порядка 70 тысяч. После реализации проекта застройки будет использовано больше половины площадей, которые пока остаются свободными. Но основной упор сделают не на жилищное строительство, а на открытие новых производств.
http://aninvest.ru/news/65/
В ближайшие годы Москва будет активно расти в сторону севера. В районе Молжаниново запланировано строительство 5 млн. квадратных метров недвижимости, из них 20% займет жилье. По сути, это будет маленький самодостаточный городок в огромном мегаполисе.
Пока Молжаниново остается одним из самых неосвоенных районов столицы: общая площадь недвижимости там составляет всего 280 тыс. «квадратов», из них жилья – порядка 70 тысяч. После реализации проекта застройки будет использовано больше половины площадей, которые пока остаются свободными. Но основной упор сделают не на жилищное строительство, а на открытие новых производств.
http://aninvest.ru/news/65/
Группа военных адвокатов https://voengrup.ru/
#1866
Интересно, а каких именно производств: свечных заводиков или нефтеперегонных?Но основной упор сделают не на жилищное строительство, а на открытие новых производств.
"Цирк, по сравнению с нами-просто виды Палестины в волшебном фонаре." О.Генри
Re:
#1868Если посмотреть московскую ветку, где пост 13960 Алекса на стр.698, ссылка на "Коммерсант" от 10.02.2012 г. , то расчет планов по стройкам идет 30 тыс.руб. - кв.м"А в Москве ГК "СУ-155" по контракту с Минобороны достраивает микрорайон Молжаниново (расположен на Ленинградском шоссе сразу за Химками и поворотом на Международное шоссе). Здесь уже построены четыре корпуса из 15 запланированных. Строительство началось в апреле 2012 года, завершится во второй половине 2013-го. По контракту с Минобороны "цена" 1 кв. м в этих домах составляет около 70 тыс. рублей. Но на рынке этого жилья не будет - все квартиры микрорайона будут "розданы" отставным военным. При нормативе предоставления жилья семье военнослужащего, состоящей из трех человек, в 65 кв. м, такая квартира (двухкомнатная) в московском Молжанинове будет стоить не больше 5 млн рублей - совершенно не столичные цены."
"Земля на Синявинской улице расположена в промзоне Подрезково, где возможно строительство только производственных и культурно-просветительских объектов. Здесь Минобороны хотело построить 178,4 тыс. кв. м жилья.
Проблему с участком в Подрезково Минобороны может решить, поменяв его назначение под жилье, но это потребуется минимум полгода, считает господин Лещев. Хотя по этой земле еще нет всей документации министерство через свою "дочку" — ОАО ГУОВ — выбрало подрядчика — группу СУ-155 Михаила Балакина, получившую контракт на 5,35 млрд руб., сообщил "Ъ" источник в Минобороны и подтвердила пресс-служба компании. Собеседник "Ъ" в ведомстве говорит, что уже выдан аванс по контракту. Эта сумма может составлять до 30% от общей суммы подрядных работ, говорит представитель "Главстроя" (также строит жилье для военных) Виталий Королев. В пресс-службе СУ-155 утверждают, что "в истории компании нет эпизодов, когда группа получала бы авансы по заведомо невыполнимым контрактам". СУ-155 остается главным партнером военных: в 2009- 2011 годах группа передала Минобороны 697,7 тыс. кв. м на 24,853 млрд руб. (365,8 тыс. кв. м приходится на столицу и Подмосковье).
Подробнее: http://www.kommersant.ru/doc/1869870
#1869
Забавно, что уже в то время думали, чтоб над азартными игроками не летали самолеты 
Из истории проектов в Можаниново
и кое-что о соседях МФК
Из истории проектов в Можаниново
и кое-что о соседях МФК
#1870
ТВЁРДЫЙ, Вы абсолютно правы. В1970 писал, что отказался именно поэтому. Я правильно понял, В1970?
ДЖО очень сильно торопится и раздает извещения, которые вообще-то раздавать ещё не имеет права. Про право собственности Вы уже написали. А если почитать НПА внимательно, то можно найти, что извещения могут выдаваться только на жилые помещения. Построенный дом будет считаться пригодным для проживания только после того, как его примет госкомиссия. Так вот, первые 4 корпуса в Молжаниново госкомиссия ещё не принимала. Сразу напишу, "по слухам", принимать должны были в середине января. Сейчас говорят, что принимать будут через 2 недели.
ДЖО очень сильно торопится и раздает извещения, которые вообще-то раздавать ещё не имеет права. Про право собственности Вы уже написали. А если почитать НПА внимательно, то можно найти, что извещения могут выдаваться только на жилые помещения. Построенный дом будет считаться пригодным для проживания только после того, как его примет госкомиссия. Так вот, первые 4 корпуса в Молжаниново госкомиссия ещё не принимала. Сразу напишу, "по слухам", принимать должны были в середине января. Сейчас говорят, что принимать будут через 2 недели.
#1871
Други, звыняйте... Прочел старую редакцию...Народ, я только что прозрел или это уже обсуждалось? Пр.1280 п.12. Не позднее чем через десять рабочих дней с даты поступления в уполномоченный орган сведений о жилых помещениях, на которые оформлены в установленном порядке права собственности Российской Федерации и которые могут быть распределены, уполномоченный орган вручает под расписку или иным способом, свидетельствующим о факте и дате его получения, военнослужащим, принятым на учет нуждающихся в жилых помещениях, извещения о распределении жилых помещений по рекомендуемому образцу (приложение N 5 к настоящей Инструкции).
Получается, что изначально ДЖО не имело право выписывать Извещения, а выписав его ОНО нарушило приказ?
Извините, если у меня позднее зажигание...
#1872
К 23-ему готовятся, наверное..........Сразу напишу, "по слухам", принимать должны были в середине января. Сейчас говорят, что принимать будут через 2 недели.
"Цирк, по сравнению с нами-просто виды Палестины в волшебном фонаре." О.Генри
#1873
Абсолютно! До настоящего времени данный дом в эксплуатацию не сдан, что свидетельствует о том, что данная квартира не является жилым помещением.Я правильно понял, В1970?
Права собственности Российской Федерации на указанный дом не оформлены. Указанные нарушения свидетельствуют о том, что проживать в нем, а так же зарегистрироваться (как по месту жительства) будет невозможно, вследствие чего невозможна будет реализация многих моих (и членов моей семьи) гражданских прав, которые зачастую зависят от т.н. «прописки». Это так немного лирики. Про недостатки я недавно писал в проекте обращения в прокуратуру
#1874
А как-же о таком требовании, что к домам должны быть оборудованны надлежащие подъездные дороги, места для парковки автомобилей, я уже не говорю про детские пложадки и т.д.
#1875
Это естественно сейчас аргумент при отказе, так что думаю не будут пока распределять дальше без права собственности РФ, решение окончательно пока не принято.Права собственности Российской Федерации на указанный дом не оформлены.
Ждем, что будет дальше ... !!!
Группа военных адвокатов https://voengrup.ru/
Re:
#1876Для территории города, округа, района, микрорайона общую потребность в машиноместах для хранения легковых автомобилей физических лиц следует принимать в количестве не менее 320 машиномест на 1000 жителей. Постановление правительства Москвы № 769-ПП от 4 октября 2005г.А как-же о таком требовании, что к домам должны быть оборудованы надлежащие подъездные дороги, места для парковки автомобилей, я уже не говорю про детские площадки и т.д.
#1878
ТВЁРДЫЙ, я тоже был не совсем прав. Отсутствие права собственности РФ само по себе не запрещает выдывать извещения. В корешке №1 спрашивается не только согласие на предложенное жилье, но и согласие на заселение в это жильё при отсутствии права собственности РФ. То есть приказ МО как ведомственный документ разрешает выписывать извещения при отсутствии права собственности РФ. А вот то, что дом ещё фактически не является жильем - это серьезно. И меня это сильно напрягает.
Я понимаю, когда кому-то невтерпёж уехать из Зюзино или тяжело снимать жильё, но давайте себя-то обманывать не будем. Те, кто сюда переедут сейчас, пока ещё много чего не принято и не оформлено, сильно рискуют. Не хочу здесь нагнетать обстановку или кого-то пугать, но представьте себе, что может быть, если в Молжаниново уже появятся жильцы по договорам пользования, а компания СУ-155 вдруг обанкротится. Таких жильцов просто по суду выселят. А насчет банкротства СУ-155 периодически вопросы возникают. Например,
http://realty.lenta.ru/news/2013/01/21/su155/
Не хочу ничего плохого думать про компанию, которая строит жилье для военнослужащих, но кто знает, как у неё действительно дела.
А кто знает, какие ещё могут быть проблемы?
Я надеюсь, что такого случая как тот, на который указал polkovnik_2 ( http://www.oszpv.ru/foto/novosti-sobyti ... olzaninovo ), не будет. Но известно, что стройка была начата незаконно, сколько и какие нарушения были допущены, наверно, никто не знает. В общем, неясных моментов очень много.
Я понимаю, когда кому-то невтерпёж уехать из Зюзино или тяжело снимать жильё, но давайте себя-то обманывать не будем. Те, кто сюда переедут сейчас, пока ещё много чего не принято и не оформлено, сильно рискуют. Не хочу здесь нагнетать обстановку или кого-то пугать, но представьте себе, что может быть, если в Молжаниново уже появятся жильцы по договорам пользования, а компания СУ-155 вдруг обанкротится. Таких жильцов просто по суду выселят. А насчет банкротства СУ-155 периодически вопросы возникают. Например,
http://realty.lenta.ru/news/2013/01/21/su155/
Не хочу ничего плохого думать про компанию, которая строит жилье для военнослужащих, но кто знает, как у неё действительно дела.
А кто знает, какие ещё могут быть проблемы?
Я надеюсь, что такого случая как тот, на который указал polkovnik_2 ( http://www.oszpv.ru/foto/novosti-sobyti ... olzaninovo ), не будет. Но известно, что стройка была начата незаконно, сколько и какие нарушения были допущены, наверно, никто не знает. В общем, неясных моментов очень много.
-
Большой папа
- Заслуженный участник
- Сообщения: 882
- Зарегистрирован: 03 янв 2011, 23:57
- Откуда: Московская область
#1879
Не плохой ликбез. А за большой опт скидка, интересно, будет.Инструкция по приему новостройки : http://ideas.vdolevke.ru/posts/8826/
"Самое тяжелое в нашей профессии... - ЖДАТЬ!" (к/ф "В бой идут одни старики")
- Tamer
- Заслуженный участник
- Сообщения: 1736
- Зарегистрирован: 21 окт 2011, 09:16
- Откуда: 48762(II) - 343
#1880
Скидка уйдёт на оплату проезда приёмщиков из Питера.А за большой опт скидка, интересно, будет.
Бездомный полк в социальной сети ВКонтакте
#1881
решение о чем?решение окончательно пока не принято
Все-таки по сериям... Нашли планировку двушек и однушек мм, понятно с "объединенной" трешкой, а что с "распашонкой"?
я вот такую "редакцию" нашла

на первый взгляд похоже, НО я не припомню в "распашонке" выхода на балкон с кухни. Однозначно и точно помню, что в угловом подъезде выход на балкон из "угловой" комнаты (я еще обратила внимание, что она по 3 стенам выходит на улицу)
Еще спросила знакомого, активно занимающегося строительством, он сказал, что в 155мм потолки однозначно выше или равны 270 см, точно-точно не 2,5 м, в принципе, то же самое говорит и интернет. Например здесь http://www.1dom.ru/seriadoma/i-155_MM.phtml Но что там СУ-155 придумало совместно с МО, наверное, никому не известно... Со строителями, судя по всему, нет смысла разговаривать, наверное, поможет нам только рулетка....
А где еще дома такой серии? может, на форумах жильцов посмотреть
То, что мы называем отчаянием, часто — всего лишь острая досада из-за обманутых надежд (с) Джордж Элиот
- Tamer
- Заслуженный участник
- Сообщения: 1736
- Зарегистрирован: 21 окт 2011, 09:16
- Откуда: 48762(II) - 343
#1882
Zvezda-da,
Это снова не тот проект. Посмотрите здесь: http://vk.com/album-1618109_134831606
На подписях к фотографиям во многих случаях указаны адреса домов - по ним, наверное, и стоит вычислять форумы жильцов.
Поделитесь результатами, если найдёте что-нибудь стоящее.
Это снова не тот проект. Посмотрите здесь: http://vk.com/album-1618109_134831606
На подписях к фотографиям во многих случаях указаны адреса домов - по ним, наверное, и стоит вычислять форумы жильцов.
Поделитесь результатами, если найдёте что-нибудь стоящее.
Бездомный полк в социальной сети ВКонтакте
- Tamer
- Заслуженный участник
- Сообщения: 1736
- Зарегистрирован: 21 окт 2011, 09:16
- Откуда: 48762(II) - 343
#1883
Прокомментирую одну из заброшенных на форум фотографий применительно к плану квартиры.
10-й корпус. Один из средних подъездов. Двухкомнатная "распашонка" (на плане - выделена жёлтым). Малая комната.
На снимке - дверь, за которой скрыта неглубокая, чуть более полуметра, глухая ниша, боковая стенка которой на стадии строительства ничем не закрыта и выходит в коридор.
Откуда она образовалась?
Судя по всему, вместо большого совмещённого санузла (при наличии здесь же отдельного "WC-кабинета), как это указано на плане, застройщик применил обычный узкий блок ванной комнаты.и таким образом "обыграл" образовавшееся свободное пространство.
10-й корпус. Один из средних подъездов. Двухкомнатная "распашонка" (на плане - выделена жёлтым). Малая комната.
На снимке - дверь, за которой скрыта неглубокая, чуть более полуметра, глухая ниша, боковая стенка которой на стадии строительства ничем не закрыта и выходит в коридор.
Откуда она образовалась?
Судя по всему, вместо большого совмещённого санузла (при наличии здесь же отдельного "WC-кабинета), как это указано на плане, застройщик применил обычный узкий блок ванной комнаты.и таким образом "обыграл" образовавшееся свободное пространство.
Бездомный полк в социальной сети ВКонтакте
#1884
Zvezda-da, в И-155Мм другая планировка.
Рассматривайте вот эти схемы: Сразу напишу, в чём на схемах не уверен.
В 6 подъезде не был, но у него вроде должна быть такая планировка, как на схеме.
В необъединённой трёшке жилая площадь может быть указана не совсем точно. Размеры дальней комнаты и коридора к ней измерял сам, возможны небольшие ошибки на 0,1-0,2 м.
В объединённой трёшке не был, только в однушках. Как их объединили, точно не знаю. Может быть там нет такого проема, как на схеме, и корридор везде одинаковой ширины. С какой стороны (у какой из бывших однушек) оставили входную дверь, тоже не знаю.
Добавлено спустя 14 минут:
Наверно, надо уточнить, что в угловых 5 и 6 подъездах планировка не точно такая как указана. То есть можно схему посмотреть, чтобы сориентироваться, какие там квартиры. В первую очередь оценить площадь.
Рассматривайте вот эти схемы: Сразу напишу, в чём на схемах не уверен.
В 6 подъезде не был, но у него вроде должна быть такая планировка, как на схеме.
В необъединённой трёшке жилая площадь может быть указана не совсем точно. Размеры дальней комнаты и коридора к ней измерял сам, возможны небольшие ошибки на 0,1-0,2 м.
В объединённой трёшке не был, только в однушках. Как их объединили, точно не знаю. Может быть там нет такого проема, как на схеме, и корридор везде одинаковой ширины. С какой стороны (у какой из бывших однушек) оставили входную дверь, тоже не знаю.
Добавлено спустя 14 минут:
Наверно, надо уточнить, что в угловых 5 и 6 подъездах планировка не точно такая как указана. То есть можно схему посмотреть, чтобы сориентироваться, какие там квартиры. В первую очередь оценить площадь.
- Радистка51
- Заслуженный участник
- Сообщения: 2503
- Зарегистрирован: 15 фев 2012, 16:07
#1885
http://www.1dom.ru/seriadoma/ В домах одной серии планировки и метраж варьируют довольно в большом диапазоне Нужна конкретная планировка каждой квартиры или замер
- Tamer
- Заслуженный участник
- Сообщения: 1736
- Зарегистрирован: 21 окт 2011, 09:16
- Откуда: 48762(II) - 343
#1886
Радистка51,
К сожалению, в отношении довольно большой серии домов И-155, представленной большим количеством разнообразных вариантов индексов, указанный сайт изобилует неточностями.
Особенно в отношении строящихся в Молжаниново И-155Нб, И-155Мк, И-155Мм.
К сожалению, в отношении довольно большой серии домов И-155, представленной большим количеством разнообразных вариантов индексов, указанный сайт изобилует неточностями.
Особенно в отношении строящихся в Молжаниново И-155Нб, И-155Мк, И-155Мм.
Бездомный полк в социальной сети ВКонтакте
#1887
Радистка51, замеры произведены не везде
. Но, как мне кажется, планировки в сообщениях 1839 и 1884 показаны правильно.
-
Большой папа
- Заслуженный участник
- Сообщения: 882
- Зарегистрирован: 03 янв 2011, 23:57
- Откуда: Московская область
#1888
Если смотреть по схеме, то оставили правую входную дверь (за угол от лифтаВ объединённой трёшке не был, только в однушках. Как их объединили, точно не знаю. Может быть там нет такого проема, как на схеме, и корридор везде одинаковой ширины. С какой стороны (у какой из бывших однушек) оставили входную дверь, тоже не знаю.
В трешках-распашонках комната с балконом уж очень темная показалась (света реально не хватает).
"Самое тяжелое в нашей профессии... - ЖДАТЬ!" (к/ф "В бой идут одни старики")
-
vadimovich
- Активный участник
- Сообщения: 104
- Зарегистрирован: 14 авг 2012, 22:17
#1889
Вчера был в Молжаниново. Посетил 6-й корпус - 2, 3, 4 этаж.сожалению, в отношении довольно большой серии домов И-155, представленной большим количеством разнообразных вариантов индексов, указанный сайт изобилует неточностями.
Особенно в отношении строящихся в Молжаниново И-155Нб,
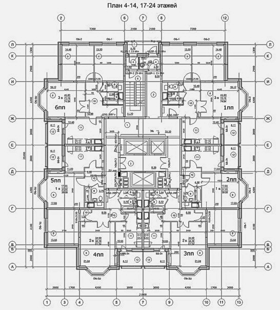
Картинки - 1-й рисунок - 2 и 3 этаж. 2-й рисунок - 4 этаж.
какая разница? 2, 3 этажи - квартиры без балконов и эркеров, не думайте, что на рис. 1 есть балконы, это показаны переходные межэтажные площадки. 4-14 и 17-24 этажи (рис.2) нормальные, с эркерами и балконами. 15, 16 этажи - квартиры без эркеров, но с балконами (зачем это сделано? ХЕЗ!). За размеры не ручаюсь, но планировка точная. Квартиры как из инкубатора - отделка, обои, трубы и все остальное одинаковое, только комнатность разная, обои рябые, линилиум под дерево дешевенький, есть огрехи в отделке, но все равно жить пока можно, ремонт сразу все равно не будете делать, пусть дома усядутся, а это почти год (все сезоны) должен пройти. ИМХО
- Tamer
- Заслуженный участник
- Сообщения: 1736
- Зарегистрирован: 21 окт 2011, 09:16
- Откуда: 48762(II) - 343
#1890
Существует такое понятие - "Золотое сечение". Чисто эстетическая фишка.(зачем это сделано? ХЕЗ!)
Золотое сечение#.D0.97.D0.BE.D0.BB.D0.BE.D1.82.D0.BE.D0.B5 .D1.81.D0.B5.D1.87.D0.B5.D0.BD.D0.B8.D0.B5 .D0.B8 .D0.B3.D0.B0.D1.80.D0.BC.D0.BE.D0.BD.D0.B8.D1.8F .D0.B2 .D0.B8.D1.81.D0.BA.D1.83.D1.81.D1.81.D1.82.D0.B2.D0.B5
Бездомный полк в социальной сети ВКонтакте
Вернуться в «ОБСТАНОВКА С ЖИЛЬЕМ ПО ГОРОДАМ»
Кто сейчас на конференции
Сейчас этот форум просматривают: нет зарегистрированных пользователей и 10 гостей
