
Москва, ул.Левобережная
- МаринаУльяна
- Активный участник
- Сообщения: 113
- Зарегистрирован: 27 ноя 2014, 22:02
#9962
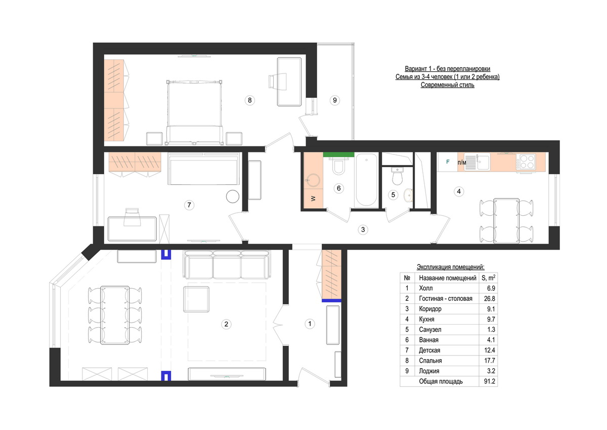
Товарищи, замерил ли кто нибудь внутренние размеры квартир? Нужны размеры кухни в однюшке 11,6 кв.метров
- VincentVega
- Участник
- Сообщения: 27
- Зарегистрирован: 23 сен 2013, 12:38
#9963
Вроде такой чертеж можно взять у ключниц. Толи 9, толи 10. Вроде размеры однушки видны четко.
Добавлено спустя 2 минуты 53 секунды:
Для всех соседей в трешках корпуса 22 - типовые проекты перепланировки.
Добавлено спустя 2 минуты 53 секунды:
Для всех соседей в трешках корпуса 22 - типовые проекты перепланировки.
- МаринаУльяна
- Активный участник
- Сообщения: 113
- Зарегистрирован: 27 ноя 2014, 22:02
#9964
VincentVega,
Спс!!
Добавлено спустя 4 минуты 10 секунд:
VincentVega,
Огромная просьба - есть ли вожможность сбросить на почту четвертую схему (фото) в разрешении получше. Почта - cheblanin@mail.ru
Спасибо!
Спс!!
Добавлено спустя 4 минуты 10 секунд:
VincentVega,
Огромная просьба - есть ли вожможность сбросить на почту четвертую схему (фото) в разрешении получше. Почта - cheblanin@mail.ru
Спасибо!
Re:
#9965По факту размеры отличаются, я раньше все выкладывал. Например, длина не 430, а 425. После перемера получилась кухня немного меньше, чем заявлено строителями.Вроде такой чертеж можно взять у ключниц. Толи 9, толи 10. Вроде размеры однушки видны четко.
Добавлено спустя 2 минуты 53 секунды:
Для всех соседей в трешках корпуса 22 - типовые проекты перепланировки.
Так что размеры точные скорее всего у всех разные, а это схема с примерными размерами.
- VincentVega
- Участник
- Сообщения: 27
- Зарегистрирован: 23 сен 2013, 12:38
Re: Москва, ул.Левобережная
#9966Как инженер-"инженеру": на схеме размеры даны от и до центра стен, а измерения вручную проводятся от края стены до края.Например, длина не 430, а 425
Re: Москва, ул.Левобережная
#9967Ну раз Вы инженер, то можете сами проверить размеры в своей квартире как показано на плане (по тем местам где стоят размеры). Я так и проверял когда заметил отличие при замере по стене.Как инженер-"инженеру": на схеме размеры даны от и до центра стен, а измерения вручную проводятся от края стены до края.Например, длина не 430, а 425
Кухня почти на метр меньше заявленного метража.
-
- Участник
- Сообщения: 86
- Зарегистрирован: 20 дек 2014, 00:16
#9968
Всем доброго времени суток!Справа от фотографии Владимира Черных есть перечень сайтов-выбирайте ПОЭТАЖНЫЕ ПЛАНЫ и найдете именно свой корпус с метражом.
Добавлено спустя 9 минут 1 секунду:
Откроется Форум:Р-н Ховрино,ул.Левобережная, д.4 а.Просмотрите 1-ю страницу.
Добавлено спустя 9 минут 1 секунду:
Откроется Форум:Р-н Ховрино,ул.Левобережная, д.4 а.Просмотрите 1-ю страницу.
- МаринаУльяна
- Активный участник
- Сообщения: 113
- Зарегистрирован: 27 ноя 2014, 22:02
#9970
tami,
Наконец то толковая схема! Все просто и понятно.
Огромная просьба - есть ли возможность сбросить на почту (не скачивается). Почта - cheblanin@mail.ru Спасибо!
Наконец то толковая схема! Все просто и понятно.
Огромная просьба - есть ли возможность сбросить на почту (не скачивается). Почта - cheblanin@mail.ru Спасибо!
-
- Новичок
- Сообщения: 3
- Зарегистрирован: 12 мар 2014, 15:13
#9972
Соглашусь с Leha-30 размер кухни на80-100см меньше заявленного строителями. Но думаю, что на разных этажах разные погрешности, я замерял 4 этаж в 4х комнатную кв. Корпус 6, так мне сказала ключница.
#9974
Вопрос такой. Получил сегодня извещение с доплатой (доплачивать нет желания да и средств). Карантин 5 тилетний заканчивается ЧЕРЕЗ месяц, ровно! В извещении написано: предлагается доплатить после оформления права собственности РФ на данное ЖП, соответственно наличие права собственности НЕТ. Но с распределением согласен. Как долго оформляется право собственности и будули я по истечению карантина (через месяц) доплачивать , если дам согласие. Или писать отказ?
#9976
tetti,отказ мне кажется воообще не вариант.Право собственности не месяц и не два будут оформлять.А доплачивать или нет это уже от вас будет зависить.Номер извещения своего не напишите?а то у меня 3156хх ...где это 

#9978
Вы,наверно, и сами знаете ответ!Конечно соглашаться!Но до времени оформления собственности(май), оформить в ДЖО снятие временного ограничения (карантина) законным способом (т.е.предоставлением необходимых документов) с внесением изменений в реестр состава семьи, имеющих право на указанную жилую площадь.В любом случае-отказаться можете на любом этапе до подписания договора собственности (ДСН)!...Получил сегодня извещение с доплатой (доплачивать нет желания да и средств). Карантин 5 тилетний заканчивается ЧЕРЕЗ месяц, ровно! В извещении написано: предлагается доплатить после оформления права собственности РФ на данное ЖП, соответственно наличие права собственности НЕТ. Но с распределением согласен. Как долго оформляется право собственности и будули я по истечению карантина (через месяц) доплачивать , если дам согласие. Или писать отказ?
#9979
Вас, при оформлении распределённой квартиры, могут попросить заново встать на квартирный учет.... Вот как бывает...Карантин 5 тилетний заканчивается ЧЕРЕЗ месяц, ровно!
#9980
так я не хочу доплачивать, месяц до конца УЖУ!!!! Какая доплата.......... На горячей линии сказали что если дам согласие то буду доплачивать, даже не смотря на истечение срока карантинаА доплачивать или нет это уже от вас будет зависить

#9981
Квартиры распределяют только стоящим на учете!А вот доплату можно отбить законным снятием карантина с члена семьи!Полгода впереди!Вас, при оформлении распределённой квартиры, могут попросить заново встать на квартирный учет.... Вот как бывает...
#9982
3114..Номер извещения
Добавлено спустя 6 минут 20 секунд:
Так что , писать "согласен" и собирать доки, а через месяц, когда буду отдавать, сказать что УЖУ закончился и они пишут мне другое извещение на другую квартиру?
#9983
Такое могут сказать на любой линии(холодной,голубой), пока неизвестное лицо не несет персональной или солидарной ответственности ни перед руководством ни перед всевышним!На горячую линию в суд не подать!Делайте письменный запрос-получите официальный ответ!!!Читайте внимательно НПА (Пр МО РФ № 1280).Снимите карантин-не будет оснований к доплате!Будут требовать-посчитайте метраж квартиры относительно членов семьи, имеющих право на жилую площадь.Нормативы в приказе есть.На горячей линии сказали что если дам согласие то буду доплачивать, даже не смотря на истечение срока карантина
Re:
#9985[quote="tetti"][quote="Пловец"]
Так что , писать "согласен" и собирать доки, а через месяц, когда буду отдавать,подать документы , на всех членов семьи имеющих право на указанную жилую площадь!.Они сами проверят право каждого члена семьи(РосРеестр) и примут решение!Вы соглашаетесь на указанную квартиру, а не на покупку дополнительных метров!ИМХО!Появится дополнительный член семьи-запросят дополнительно документы, вопрос доплаты должен отпасть при оформлении собственности.Если площадь позволяет, зачем им (ДЖО) предлагать другую квартиру!?
Так что , писать "согласен" и собирать доки, а через месяц, когда буду отдавать,подать документы , на всех членов семьи имеющих право на указанную жилую площадь!.Они сами проверят право каждого члена семьи(РосРеестр) и примут решение!Вы соглашаетесь на указанную квартиру, а не на покупку дополнительных метров!ИМХО!Появится дополнительный член семьи-запросят дополнительно документы, вопрос доплаты должен отпасть при оформлении собственности.Если площадь позволяет, зачем им (ДЖО) предлагать другую квартиру!?
-
- Заслуженный участник
- Сообщения: 4349
- Зарегистрирован: 16 июн 2011, 20:02
#9986
А как вам такая логика рассуждения?
Нам уже несколько раз говорили что очередей несколько, в зависимости от потребности в метрах. И в данном случае человек получил в порядке своей очереди например на 2 чс. А тут истекает карантин и он автоматически переходит в другую очередь и например это его распределение даст ему возможность обогнать кого-то в этой новой очереди для 3 ЧС. Ну не дошли они еще в распределении относительно трешек например до этой даты и если ему оставить эту квартиру он автоматически кого-то обгоняет... Видимо если захотят забрать, то обосновывать будут (если будут) примерно так( И не важно что с их стороны нарушений море. Что позволено.... 


Есть три ловушки сатаны, которые воруют радость и мир: сожаление о прошлом, тревога за будущее и отсутствие благодарности за настоящее.
Re:
#9987Если человеку предложена конкретная квартира, но с доплатой, ввиду карантина(истекающего через месяц) одного из членов семьи,в какую очередь он перейдет, если останется (согласится) в той же квартире но без доплаты в следствии изменения состава семьи!?А как вам такая логика рассуждения?....![]()

По закону он соглашается только с предложенным вариантом квартиры!(5 суток)Если он не уволен-значит он военнослужащий . Если он военнослужащий-значит обеспечивается жилой площадью из расчета состава семьи имеющих право на нее!Предоставляет документы на всех членов семьи нуждающихся в жилой площади (30 суток= месяц) в соответствии с законами РФ(ЖК) и Пр МО РФ № 1280
-
- Заслуженный участник
- Сообщения: 4349
- Зарегистрирован: 16 июн 2011, 20:02
#9989
l-colonel, ну эту квартиру ему распределили на 2 чс, пусть и с превышением согласно очереди. и вот например пусть он принят 2011 годом. А потом при истечении карантина, вы предлагаете оставить ему ту же квартиру уже на 3 чч, причем той же датой распределения. А тут я с тремя чс годом признания 2010 и все еще без предложения.. Я не ради спора. У нас возможна подобная ситуация.
Есть три ловушки сатаны, которые воруют радость и мир: сожаление о прошлом, тревога за будущее и отсутствие благодарности за настоящее.
-
- Новичок
- Сообщения: 3
- Зарегистрирован: 12 мар 2014, 15:13
Москва, ул.Левобережная
#9990А может кто-то что-то знает про 13 корпус, там распределяют квартиры многодетным?
Вернуться в «ОБСТАНОВКА С ЖИЛЬЕМ ПО ГОРОДАМ»
Кто сейчас на конференции
Сейчас этот форум просматривают: Bing и 1 гость