Ленинградская область, пос. Тельмана
#332
alex_lo,
в Москве, на Беговой.
полная инфо. А так со всей страны по-маленьку.
в Москве, на Беговой.

Помоги себе сам и Бог тебе поможет
#333
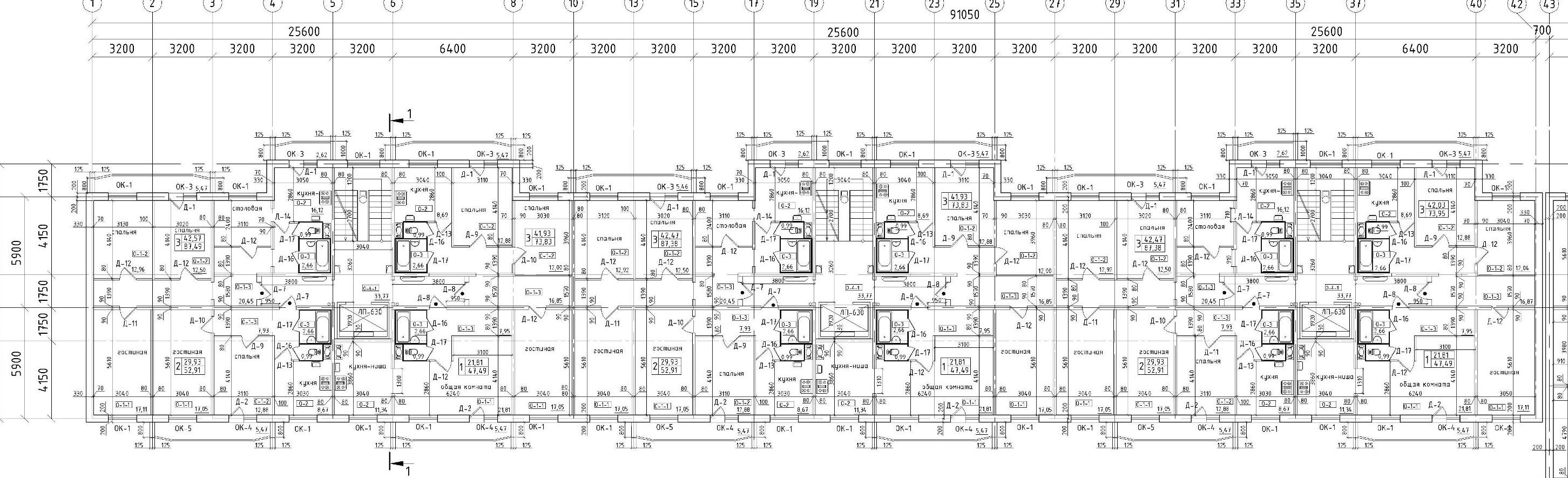
Кто может подсказать где найти планировку квартир в доме №3(корп.№12)по ул.Онежской. На сайте Домостроя ничего разобрать нельзя. Конкретно интересует "трешка" 87,38 кв.м. И еще:квартира № 81(в корп.№12) - это какой этаж и какой подъезд ? Заранее благодарен.
#335
alex_lo,
Действительно , информация по жилью только в ГлавКэу ...а так присутствующие здесь - разные Рода и разные Виды , кому как подкинули . В основном наверное северо-запад .
Действительно , информация по жилью только в ГлавКэу ...а так присутствующие здесь - разные Рода и разные Виды , кому как подкинули . В основном наверное северо-запад .
Хочешь попасть в Америку? Служи в РВСН!
#336
Приветствую, камрады!
Распределили мне во вторник двушку на Онежской, 3, так что принимайте в компанию еще одного потенциального соседа.
Да, в нашей части было распределено три квартиры (включая мою) в этом доме.
Распределили мне во вторник двушку на Онежской, 3, так что принимайте в компанию еще одного потенциального соседа.

Да, в нашей части было распределено три квартиры (включая мою) в этом доме.
#338
Сам еще не разобрался. Знаю только из протокола ЖК номер 183 эт. 8 площадь - 56,71 кв.м. Пытался сопоставить с документацией с сайта Домостроя - пока не срослось.В какой секции хата ?

#341
Подскажите мне пожалуйста Онежская 3 кв. 254 какой метраж комнат? Угловая или нет, какой этаж? Общая площадь кв. 73.8кв.м трёшка.
#342
dmt,
Квартира примерно такая ( может зеркальная ) , как на плане выложенном на предыдущей странице . В 1-ом подъезде на 1 этаже 3 квартиры, во втором подъезде на первом 2 квартиры , в 3 3- квартиры. все остальные этажи типовые и этот план представлен на сайте "Домостроя". Этаж должны были сообщить в тлг.
Квартира примерно такая ( может зеркальная ) , как на плане выложенном на предыдущей странице . В 1-ом подъезде на 1 этаже 3 квартиры, во втором подъезде на первом 2 квартиры , в 3 3- квартиры. все остальные этажи типовые и этот план представлен на сайте "Домостроя". Этаж должны были сообщить в тлг.
спасибо
Хочешь попасть в Америку? Служи в РВСН!
#344
первый
Добавлено спустя 7 минут 8 секунд:
первый этаж
Добавлено спустя 2 минуты 37 секунд:
....
Добавлено спустя 7 минут 8 секунд:
первый этаж
Добавлено спустя 2 минуты 37 секунд:
....
Хочешь попасть в Америку? Служи в РВСН!
11 корпус типовой этаж
#34511 корпус типовой этаж
Добавлено спустя 1 минуту 15 секунд:
типовой этаж
Добавлено спустя 1 минуту 37 секунд:
11
Добавлено спустя 1 минуту 15 секунд:
типовой этаж
Добавлено спустя 1 минуту 37 секунд:
11
Хочешь попасть в Америку? Служи в РВСН!
#346
esv001,
Скиньте пожалуйста 7 корпус (Ладожский бульвар,5), а то у меня что-то не получается
Добавлено спустя 33 минуты 44 секунды: Ага! Спустя 3 часа!!! Это 7 корпус! вроде всё бьёт, что по фото, что на плане!!!
http://win.mail.ru/cgi-bin/getattach?fi ... t&channel=
*ЕSV001* спасибо, вроде сама справилась, не так красиво, но всё же!
Добавлено спустя 21 минуту 20 секунд:
У кого 50,75 все квартиры одинаковые (максимум зеркальные!)! Без учёта лоджий! Планировка вроде тоже ничего! Я рада

Скиньте пожалуйста 7 корпус (Ладожский бульвар,5), а то у меня что-то не получается

Добавлено спустя 33 минуты 44 секунды: Ага! Спустя 3 часа!!! Это 7 корпус! вроде всё бьёт, что по фото, что на плане!!!
http://win.mail.ru/cgi-bin/getattach?fi ... t&channel=
*ЕSV001* спасибо, вроде сама справилась, не так красиво, но всё же!
Добавлено спустя 21 минуту 20 секунд:
У кого 50,75 все квартиры одинаковые (максимум зеркальные!)! Без учёта лоджий! Планировка вроде тоже ничего! Я рада



#348
Вчера была в квартире на Онежской д.3.Там вовсю идут отделочные работы.Уже ставят входные двери ,а в квартирах межкомнатные.Завезены ванны,в сан.узлах кладут плитку.Разговаривала со строителями,и они сказали,что к середине лета они сдадут дом.
Добавлено спустя 1 минуту 57 секунд:
На Ладожской 7закончили 6 этаж,сегодня начали установку 7 этажа,а в 11 корпусе закончили 5 этаж с одной стороны,и 4 этаж с другой.
Добавлено спустя 1 минуту 57 секунд:
На Ладожской 7закончили 6 этаж,сегодня начали установку 7 этажа,а в 11 корпусе закончили 5 этаж с одной стороны,и 4 этаж с другой.
Re: Ленинградская область, пос. Тельмана
#350Убедительная просьба к "Yarino": нельзя ли чуть подробнее рассказать об отделочных работах в доме №3? Я имею в виду - что за двери(с лестничной площадки и межкомнатные), что за плитка в туалете и ванной, какие радиаторы (есть ли краны для перекрытия воды в случае замены/ремонта), какое напольное покрытие, что за сантехника?.. Вопросов много, заранее извиняюсь - но живого интереса еще больше! Спасибо.
- Константин Маркин
- Администратор
- Сообщения: 19335
- Зарегистрирован: 05 янв 2007, 19:03
- Откуда: Великий Новгород, Москва
- Контактная информация:
#352
Я живу на Онежской 7. На лестничной площадке ставят металлические красивые двери,межкомнатные тоже симпатичные.Вы полистайте страницы,там где-то есть фотографии межкомнатных дверей.В сан.узлах большая коричневая плитка.Радиаторы небольшие,белые,но топят здесь хорошо.Я переехала в феврале,мне было жарко,я подкручивала батареи.Ванна конечно не чугунная,но здесь круглосуточно подается вода,поэтому в таковой нет надобности.А вообще все хорошо.Мы в таких условиях жили,что здесь просто рай-не переживайте.
#353
Nalaru,
посмотрите
15 страница 286 сообщение - там фото выложены квартиры от МО. Можно посмотреть какие двери, плитка и т.д.
посмотрите
15 страница 286 сообщение - там фото выложены квартиры от МО. Можно посмотреть какие двери, плитка и т.д.

#354
http://s47.radikal.ru/i117/1004/7a/68785483434f.jpg Входная дверь
Добавлено спустя 3 минуты 22 секунды:
http://s02.radikal.ru/i175/1004/5a/5fdcffeeae45.jpg батарея с терморегулятором
Добавлено спустя 1 минуту 13 секунд:
http://i057.radikal.ru/1004/2a/f556b15a26d5.jpg мк дверь
Добавлено спустя 3 минуты 42 секунды:
galunik,
Считайте,если в феврале был только фундамент,а сейчас уже 6 этажей,сегодня начали 7 этаж,так что к концу года должны сдать.
Добавлено спустя 3 минуты 22 секунды:
http://s02.radikal.ru/i175/1004/5a/5fdcffeeae45.jpg батарея с терморегулятором

Добавлено спустя 1 минуту 13 секунд:
http://i057.radikal.ru/1004/2a/f556b15a26d5.jpg мк дверь
Добавлено спустя 3 минуты 42 секунды:
galunik,
Считайте,если в феврале был только фундамент,а сейчас уже 6 этажей,сегодня начали 7 этаж,так что к концу года должны сдать.
- Константин Маркин
- Администратор
- Сообщения: 19335
- Зарегистрирован: 05 янв 2007, 19:03
- Откуда: Великий Новгород, Москва
- Контактная информация:
- Константин Маркин
- Администратор
- Сообщения: 19335
- Зарегистрирован: 05 янв 2007, 19:03
- Откуда: Великий Новгород, Москва
- Контактная информация:
#357
Я же вам процитировалВы за какой дом спарашиваете?
Я живу на Онежской 7.
Адвокат.
+79210222094
+79210222094
#358
galunik,
вы уже просчитали положение своей квартиры? мне интересно, что в средних подъездах по соседству с нашими двушками есть 3-ка и 2-ка. А почему у 2-ки (75,16кв.м) -3 комнаты с окнами? А нижняя цифра в таблице что означает? Думаю -половина общего корридора с соседом? Кстати, мы сейчас живем в квартире такой же планировки, только квадратов меньше чуть-чуть.Плохо,что корридор проходной. Зато есть общий корридорчик с соседом.Будет с кем ругаться
вы уже просчитали положение своей квартиры? мне интересно, что в средних подъездах по соседству с нашими двушками есть 3-ка и 2-ка. А почему у 2-ки (75,16кв.м) -3 комнаты с окнами? А нижняя цифра в таблице что означает? Думаю -половина общего корридора с соседом? Кстати, мы сейчас живем в квартире такой же планировки, только квадратов меньше чуть-чуть.Плохо,что корридор проходной. Зато есть общий корридорчик с соседом.Будет с кем ругаться

Помоги себе сам и Бог тебе поможет
#359
severjohn,
Нижняя цифра в таблице - общая площадь квартиры, в которую входит 0,5 площади лоджии.
Нижняя цифра в таблице - общая площадь квартиры, в которую входит 0,5 площади лоджии.
#360
Конст. Маркин (Kot),
Заселены 60 процентов,очень много пустых квартир,может просто еще не въехали,ждут когда дети школу закончат.
Заселены 60 процентов,очень много пустых квартир,может просто еще не въехали,ждут когда дети школу закончат.
Вернуться в «ОБСТАНОВКА С ЖИЛЬЕМ ПО ГОРОДАМ»
Кто сейчас на конференции
Сейчас этот форум просматривают: Google, YandexBot и 8 гостей