Москва, ул.Левобережная
Москва, ул.Левобережная
#52951Здравствуйте форумчане.Такой бардак развел ДЖО с квартирами.Раньше все было прозрачно.Было понятно кто за кем в очереди.И навряд ли при старой системе обеспечения ждал бы квартиру 9 лет находясь в распоряжении.Сегодня ездили на Левобережку.Своими глазами посмотреть на эту" чудо -стройку".Со слов охранника в 17 корпус подведены все коммуникации,постелен ленолиум.Если по хорошему, то могут его закончить в этом году.Ключевое слово ЕСЛИ.
Москва, ул.Левобережная
#52952Экскаватор, трубы и формы у корпусов последней очереди наблюдал, но не обратил на это внимание, т.к. ни людей рядом в тот момент не было, ни какого либо движения. Всё выглядело безжизненным... Но ваша информация меня (да и других "ждунов") обрадовала. Видно работать начали после моего визита.QR_BBPOST .... что теплотрасники перебрались именно туда, там часто стала появляться тяжелая техника, возле башенок сложили запас труб и форм...
Москва, ул.Левобережная
#52953Любой корпус с подведенными коммуникациями могут закончить за месяц. И сдают за месяц после "волшебного пенделя", причем подходят с фантазией к этому делу. У коллеги в трешке одна межкомнатная дверь была без стекла. Почему? Оказалось, что эта комната без ремонта. Чтоб не было видно при сдаче просто заменили дверь на сплошнуюQR_BBPOST Если по хорошему, то могут его закончить в этом году.Ключевое слово ЕСЛИ.




Москва, ул.Левобережная
#52954Любой корпус с подведенными коммуникациями могут закончить за месяц...QR_BBPOST Если по хорошему, то могут его закончить в этом году.Ключевое слово ЕСЛИ.
Потому и не торопятся! У них «работа не в часах, а в сутках ! И компот!»(с)
Москва, ул.Левобережная
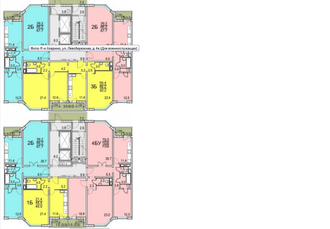
#52955Посмотрел шахматку и не обнаружил указанные вами метражи. По ней корпус ничем не отличается от других серии МК. Вы ничего не перепутали?QR_BBPOST В 12 корпусе неплохие планировки.1ком-45.9 2ком -67.7 3ком-88 и 92метра 4ком-113 метра...
Москва, ул.Левобережная
#52956Здравствуйте форумчане.Такой бардак развел ДЖО с квартирами.Раньше все было прозрачно.Было понятно кто за кем в очереди.И навряд ли при старой системе обеспечения ждал бы квартиру 9 лет находясь в распоряжении.Сегодня ездили на Левобережку.Своими глазами посмотреть на эту" чудо -стройку".Со слов охранника в 17 корпус подведены все коммуникации,постелен ленолиум.Если по хорошему, то могут его закончить в этом году.Ключевое слово ЕСЛИ.
Москва, ул.Левобережная
#52957СУ-155 разворованное "хозяином" Мойшей Балакиным (10й в списке "ФорбсРашша-да не ваша"))), изначально само придумало, спроектировало и наляпало для быдла проекты И-155ММуниципальное и И-155МКоммерческое. Разница в метраже есть. Смотрим таки сюдой:Посмотрел шахматку и не обнаружил указанные вами метражи. По ней корпус ничем не отличается от других серии МК. Вы ничего не перепутали?QR_BBPOST В 12 корпусе неплохие планировки.1ком-45.9 2ком -67.7 3ком-88 и 92метра 4ком-113 метра...
Отправлено спустя 2 минуты 59 секунд:
...почувствует таки разницу Ваша жена на кухне. 8 и 12 метров. НАПОЛОВИНУ. На 50%. Почему бы кухни не делать одинаковыми, а комнаты хрен с ним, пусть ДЖО считает по норме.
Москва, ул.Левобережная
#52958Хорошие фото. Не знал, что 17й был в 14 году так близок к сдаче.. Про обои не переживайте. Они, как их наклеили сразу пришли в негодность. Тут самое страшное металлический стояк отопления, от которого идет разводка по полу. В 13 корпусе в октябре 2018 он был полностью ржавый (корпуса стоят одно время). А так батареи тоже под замену (уверен, что они ржавые), провода, двери, все... У вас еще нычку замуровали плоским шифером. Она сразу за входной дверью, напротив стояка с отоплением. Там метра 1,5 спрятали. Еще примерно 0,8 метров на кухне в районе вентиляции (чтоб не выравнивать штукатуркой делают гипсокартонный короб. Прячут примерно 0,4 метра со стороны мойки и 0,4 со стороны стены) Проект 155 НБ. И вопрос к владельцам квартир данной планировки. Везде где смотрел, практически отсутствует вентиляция. (Это уже после демонтажа криво установленных и закрывающих вытяжку коробов и перегородок). И отверстия на вытяжку диаметром 80 мм. Что делают с вентиляцией? Даже при полном сквозняке она практически нулевая (кухня и санузел). 

Москва, ул.Левобережная
#52959Сдаётся мне, в коробе вентиляции должны стоять трубы, которые, по умолчанию, поставить «забыли»! Их должно быть две, как и отверстий в вытяжке! Общая- домовая и квартирная (или кухня- туалет) В домах с газовой плитой, установка электрической/ принудительной) вытяжки, допускалось, только при наличии двух вытяжных отверстий! (СНиП- вентиляция), а для электроплит- одной, но рабочей и только на верхних этажах зданий!( слабая тяга)... Везде где смотрел, практически отсутствует вентиляция. (Это уже после демонтажа криво установленных и закрывающих вытяжку коробов и перегородок). И отверстия на вытяжку диаметром 80 мм. Что делают с вентиляцией? Даже при полном сквозняке она практически нулевая (кухня и санузел).

Москва, ул.Левобережная
#52960[ref]bahus[/ref], Что удивительно,когда эксперт замерял уровень вентиляции,у него специальный прибор,показывает уровень в цифрах,то на кухне уровень вентиляции был в норме в соотв-и со СНиП(у меня однушка в МК серии),а в ванной был занижен в два раза,поэтому приходится постоянно открывать балкон,чтобы как-то проветрить,и то периодически появляются в ванной и в раковине мокрицы в с/у ,на кухне такого нет.
Москва, ул.Левобережная
#52961Есть важное условие установки дверной коробки в помещениях повышенной влажности- «нижний щелевой зазор» или дверное полотно с отверстиями снизу!... приходится постоянно открывать балкон,чтобы как-то проветрить,и то периодически появляются в ванной и в раковине мокрицы в с/у ,на кухне такого нет.

Москва, ул.Левобережная
#52962Хрен там был - обеспечены)) Уж простите за мой хранцузкий. Был период, предлагали многим, но не по нормам, много знаю ждунов.Многодетные уже все обеспечены жп,У кого есть мысли на сей счет???
Москва, ул.Левобережная
#52963Уважаемый [ref]Colonel-l[/ref], в "общем коробе" для вентиляции в наших домах труб как таковых нет, там установлены два вытяжных канала из железобетона (заводское литье, в инете наберите вентблоки, картинки примерные, но не точные), идут параллельно друг другу (ну, в смысле как поклали) от пола до потолка, монтируются как лего и по этажам, на каждом этаже предусмотрены заборные отверстия (стены туалет-кухня), иногда каналы не просверленные бывают - снаружи вход есть, а выхода во внутрь канала нет. Одно отверстие от первого канала работает на кухню, другое (от второго) - на санузел, вентиляция от ванны идет через туалет (т.к. усё вместе это и есть санузел). Тип вентиляции с естественным побуждением, вытяжка из помещений осуществляется в чердак и далее тудой до ветру. С установкой
Уважаемый [ref]bahus[/ref], инженер объекта однако нужен, раз
Уважаемый [ref]Mark.N[/ref], по тех/документам производительность вентиляции санузла хуже кухонного примерно в 2,5 раза, некоторые при ремонте ставят вентиляторы ванна-туалет-и в камеру, а иногда бывает как выше - вход есть, а выхода во внутрь канала нет или до конца не просверлен.
согласен, т.к. компенсация вытяжного воздуха происходит при открывании окон. Вот и путь обрисовался: окно-дверь-вент/коробка.QR_BBPOST дверной коробки
Уважаемый [ref]bahus[/ref], инженер объекта однако нужен, раз
может по всей длине канала "причина лежит/стоит", если не наши при установке, так завод ЖБИ мог брак подогнать.QR_BBPOST при полном сквозняке она практически нулевая
Уважаемый [ref]Mark.N[/ref], по тех/документам производительность вентиляции санузла хуже кухонного примерно в 2,5 раза, некоторые при ремонте ставят вентиляторы ванна-туалет-и в камеру, а иногда бывает как выше - вход есть, а выхода во внутрь канала нет или до конца не просверлен.
Москва, ул.Левобережная
#52964Уважаемый ЗамЗав! Спасибо большое за пояснения! Ваш опыт, значительно сокращает мыслительный процесс и сомнения при приемке и ремонте квартиры! Берегите себя!( Вы слишком много знаете, ещё больше -видите!) Вам что-то известно о наличии системы канализации, как временной и ее замены, так и постоянной в сторону 4 очереди, поскольку ее наличие влияет на статус готовности к сдаче ряда корпусов!? Поделитесь информацией/ наблюдениями и личными соображениями по данному вопросу!... по тех/документам производительность вентиляции санузла «хуже» кухонного примерно в 2,5 раза, некоторые при ремонте ставят вентиляторы ванна-туалет-и в камеру, а иногда бывает как выше - вход есть, а выхода во внутрь канала нет или до конца не просверлен.
Москва, ул.Левобережная
#52965А ждунам чего-то хоть предлагали?Хрен там был - обеспечены)) Уж простите за мой хранцузкий. Был период, предлагали многим, но не по нормам, много знаю ждунов.Многодетные уже все обеспечены жп,У кого есть мысли на сей счет???
Москва, ул.Левобережная
#52967А где можно почитать как правильно и мотивировано отказаться от такого предложения?(На прошлой неделе звонили из ДЖО и сказали, что есть наше решение о признании, правда мы его ещё не видели. А сегодня муж спрашивал что такое ул Синявинская? Других подробностей не знаю пока - муж на службе ещё.)Молжаниново, например, в маневренном фонде.
Москва, ул.Левобережная
#52968Дождитесь мужа и многое станет ясным! Признание ДЖО нуждающимся- это только постановка в очередь! Чтобы получить решение о заселении- надо сначала получить извещение по конкретному адресу и собрать документы ! Чтобы отказаться от жилого помещения по извещению и по нормам обеспечения- нужен мотивированный отказ! ( почти не реально!) Ул, Синявинская- это соседняя ветка форума!( мкрн Молжаниново) ЧитайтеА где можно почитать как правильно и мотивировано отказаться от такого предложения?(На прошлой неделе звонили из ДЖО и сказали, что есть наше решение о признании, правда мы его ещё не видели. А сегодня муж спрашивал что такое ул Синявинская? Других подробностей не знаю пока - муж на службе ещё.)Молжаниново, например, в маневренном фонде.
Москва, ул.Левобережная
#52969Я многие ветки на форуме читала. Извините, что влезла... но раз уж разговор зашёл, то и высказалась.
Мы многодетные, поэтому подозреваю, что разговоры не просто так. Тем более если и правда там есть квартиры. Просто местоположение категорически не устраивает(да простят меня жители). Мы скорее за ЖС останемся там, где сейчас живем.
Москва, ул.Левобережная
#52970Ваше право отказаться! В корешке извещения №2 пишите «отказываюсь из-за местоположения ЖП» и переходите в очередь на ЖС, муж увольняется командованием части ( если распоряженец) Ждёте поступления денег на лицевой счёт и покупаете где хотите и что хотите! (Сравните стоимость квартиры и размер ЖС, сроки ожидания и инфляцию)Я многие ветки на форуме читала. Извините, что влезла... но раз уж разговор зашёл, то и высказалась.
Мы многодетные, поэтому подозреваю, что разговоры не просто так. Тем более если и правда там есть квартиры. Просто местоположение категорически не устраивает(да простят меня жители). Мы скорее за ЖС останемся там, где сейчас живем.
Москва, ул.Левобережная
#52971Как отказаться что бы попасть на ЖС это не вопрос. Это крайний вариант скорее. Вопрос как отказаться что бы получить более приемлемый вариант. Вы же отказались от меньшей площади и ждёте другую квартиру. Так многие здесь.Ваше право отказаться! В корешке извещения №2 пишите «отказываюсь из-за местоположения ЖП» и переходите в очередь на ЖС, муж увольняется командованием части ( если распоряженец) Ждёте поступления денег на лицевой счёт и покупаете где хотите и что хотите! (Сравните стоимость квартиры и размер ЖС, сроки ожидания и инфляцию)Я многие ветки на форуме читала. Извините, что влезла... но раз уж разговор зашёл, то и высказалась.
Мы многодетные, поэтому подозреваю, что разговоры не просто так. Тем более если и правда там есть квартиры. Просто местоположение категорически не устраивает(да простят меня жители). Мы скорее за ЖС останемся там, где сейчас живем.
Москва, ул.Левобережная
#52972Я не менял район распределения и было извещение от 2014 г. с согласием!( только площадь пытались уменьшить в рамках нормы!) «Цена» возврата- увольнение! Корпус к заселению не готов! Пишите в ДЖО Иванову или Лысенко!Как отказаться что бы попасть на ЖС это не вопрос. Это крайний вариант скорее. Вопрос как отказаться что бы получить более приемлемый вариант. Вы же отказались от меньшей площади и ждёте другую квартиру. Так многие здесь.
-
- Заслуженный участник
- Сообщения: 17969
- Зарегистрирован: 16 июн 2012, 14:41
- Откуда: СПБ (юрист)
Москва, ул.Левобережная
#52973Требования военнослужащих (граждан, уволенных с военной службы) о предоставлении жилого помещения в конкретном месте, доме, на этаже, по конкретному адресу, с определенным количеством комнат, определенного количества жилых помещений, не соответствующие нормам федерального законодательства, удовлетворению не подлежат. Военнослужащим (гражданам, уволенным с военной службы), указанным в абзаце шестом настоящего пункта, отказавшимся от предложенного жилого помещения, расположенного по месту военной службы или по избранному месту жительства, которое соответствует требованиям, установленным законодательством Российской Федерации, предоставляется субсидия для приобретения или строительства жилого помещения в соответствии с пунктом 19 статьи 15 Федерального закона от 27 мая 1998 года N 76-ФЗ "О статусе военнослужащих". Вывод: Если квартира соответствует нормам отказаться от неё без последствий можно только с согласования с РУЖО.QR_BBPOST Вопрос как отказаться что бы получить более приемлемый вариант.
-
- Заслуженный участник
- Сообщения: 506
- Зарегистрирован: 03 июл 2009, 17:15
- Откуда: БОМЖ, просто бомж
Москва, ул.Левобережная
#52974Коллеги, а как давно мфц стал смс присылать? Текст: "по вашему заявлению N... принято решение, заберите документы". Выписку не видел ещё, но в онлайн появилась супер форма собственности: частная, федеральная государственная 

Москва, ул.Левобережная
#52975[ref]Colonel-l[/ref], Спасибо,сегодня банк перечислил деньги по исполнительному листу,поэтому буду делать ремонт и устранять их"косяки"за их счет,раз сами не устранили,и в первую очередь санузел со сносом кабины и заменой труб.
Замзав спасибо.
Замзав спасибо.
Москва, ул.Левобережная
#52976Планировки в домах И155-МК ( в том числе 12 корпус, про который писал ранее)Посмотрел шахматку и не обнаружил указанные вами метражи. По ней корпус ничем не отличается от других серии МК. Вы ничего не перепутали?QR_BBPOST В 12 корпусе неплохие планировки.1ком-45.9 2ком -67.7 3ком-88 и 92метра 4ком-113 метра...
Ссылка на поэтажные планы http://www.novostroykin.ru/forum/?nid=3424
Москва, ул.Левобережная
#52977Если бы все с таким упорством добивались устранения недостатков, то МО может бы и занялось контролем за расходованием выделяемых денег. Страшно представить. Люди по 20 лет ждут квартиры, несколько лет судятся чтоб получить, потом судятся чтоб устранили недостатки, а потом чтоб исполнили решения суда... Жить то когда???QR_BBPOST Спасибо,сегодня банк перечислил деньги по исполнительному листу,поэтому буду делать ремонт и устранять их"косяки"за их счет,раз сами не устранили,и в первую очередь санузел со сносом кабины и заменой труб.



Москва, ул.Левобережная
#52978Деньги были выделены и освоены СУ-155! МО теперь только пытается вернуть освоенные подрядчиком не по адресу застройки! ГУОВ доделывает из внебюджетных средств/ прибыли, по минимальным требованиям к жилому помещению и соответствующим качеством, прилично экономя, зная, что многие в суды не пойдут, а возьмут кредит и сразу сделают капремонт. Остальным, будут « помогать» «латать дыры и косяки» доблестные сотрудники УК за дополнительные бонусы к зарплате/премии ( платные услуги). «Контроль» МО идёт пятый год, результатов- нет! Покуда нет спроса- не будет и ответственности! (Для ностальгии можно пересмотреть видео беседы Иванова с Nik-154 на стройке!)Если бы все с таким упорством добивались устранения недостатков, то МО может бы и занялось контролем за расходованием выделяемых денег.QR_BBPOST Спасибо,сегодня банк перечислил деньги по исполнительному листу,поэтому буду делать ремонт и устранять их"косяки"за их счет,раз сами не устранили,и в первую очередь санузел со сносом кабины и заменой труб.
Москва, ул.Левобережная
#52979[ref]Colonel-l[/ref], Не только,они теперь выставили нам в коммуналку завышенные счета за отопление,я плачу уже второй год по счетчику,так кроме счета по счетчику добавили счет по теплу за ОДН,его тоже надо платить,но не в таких размерах,у меня получилось столько же,как за всю квартиру,причем до проверки фактических показаний счетчиков квартир.Подала заявление в МЖИ,результаты проверки напишу.
Москва, ул.Левобережная
#52980Для оплаты тепла по Счетчику необходимо подключение всех! квартир к ним и общедомовой прибор учета на входе теплоносителя в корпус![ref]Colonel-l[/ref], Не только,они теперь выставили нам в коммуналку завышенные счета за отопление,я плачу уже второй год по счетчику,так кроме счета по счетчику добавили счет по теплу за ОДН,его тоже надо платить,но не в таких размерах,у меня получилось столько же,как за всю квартиру,причем до проверки фактических показаний счетчиков квартир.Подала заявление в МЖИ,результаты проверки напишу.

Вернуться в «ОБСТАНОВКА С ЖИЛЬЕМ ПО ГОРОДАМ»
Кто сейчас на конференции
Сейчас этот форум просматривают: Semrush [Bot] и 20 гостей