Москва. Ясеневая вл.14
-
- Участник
- Сообщения: 84
- Зарегистрирован: 25 июл 2015, 00:02
-
- Участник
- Сообщения: 84
- Зарегистрирован: 25 июл 2015, 00:02
Москва. Ясеневая вл.14
#153Здравствуйте, Вам уже распределили там квартиру предварительно? Дома переданы МО?
-
- Участник
- Сообщения: 84
- Зарегистрирован: 25 июл 2015, 00:02
Москва. Ясеневая вл.14
#154Здравствуйте, нет не распределены квартиры ещё никому, т.к. дома не переданы МО. Просто мечтаем и ждем, ждем, ждем...
Москва. Ясеневая вл.14
#155Предварительное распределение не предусмотрено законом. То, что было в 2014, так это.... Большая афера тогдашнего руководства МО и ДЖО. За которую никто в итоге не ответил. Никому ничего не распределят до передачи жилья застройщиком и регистрации его в Росреестре.Здравствуйте, Вам уже распределили там квартиру предварительно? Дома переданы МО?
-
- Активный новичок
- Сообщения: 19
- Зарегистрирован: 30 янв 2015, 12:00
Москва. Ясеневая вл.14
#156Добрый день. Был сегодня на Ясеневой, удалось пробраться в башни 12к7 и 12к8 и осмотреть темп отделки. Отделка практически завершена, осталось в отдельных квартирах установить межкомнатные двери и установить ванны. Потолки, стены, ламинат и плитка везде уложена. Потолки везде натяжные.Дом 12 к. 7 со слов строителя планируют сдачу 30 апреля, лифты работают.Попробую добавить фото позже.
Отправлено спустя 11 минут 24 секунды:
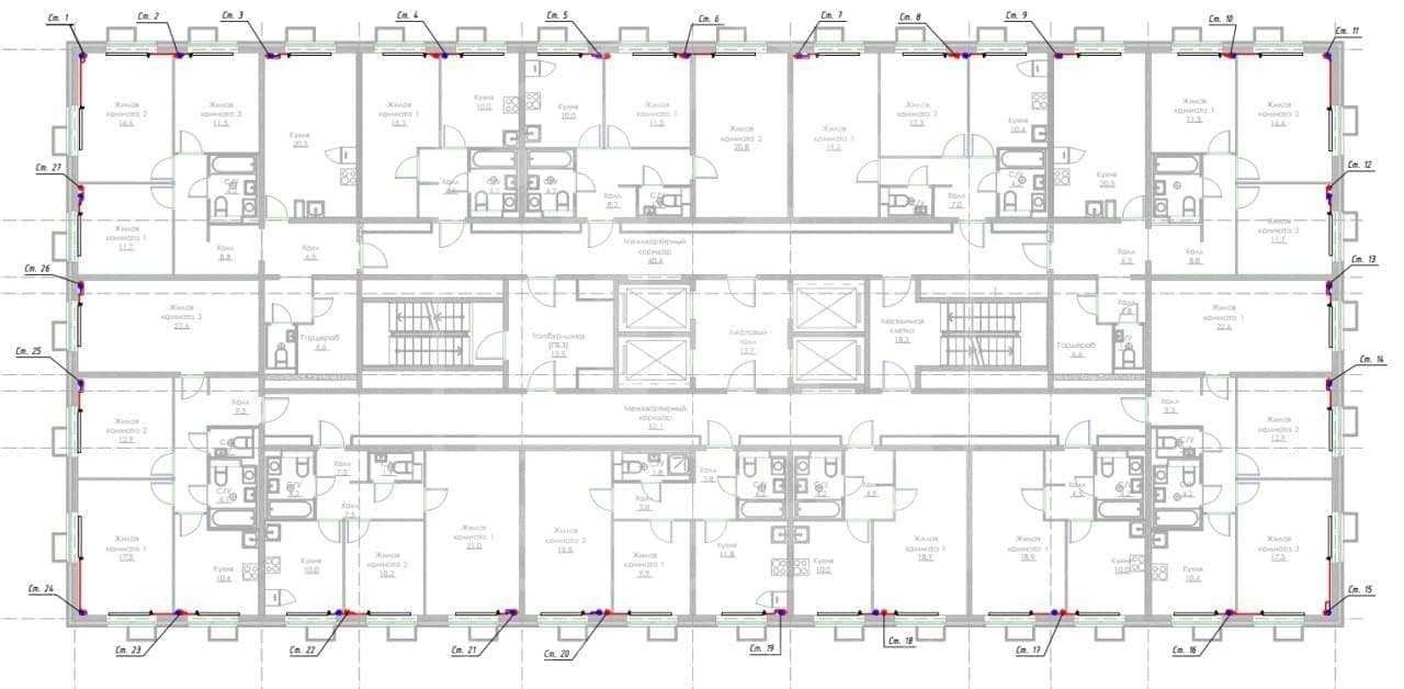
План этажа, соответствует действительности лично проверил.
Отправлено спустя 11 минут 24 секунды:
План этажа, соответствует действительности лично проверил.
-
- Участник
- Сообщения: 84
- Зарегистрирован: 25 июл 2015, 00:02
Москва. Ясеневая вл.14
#157Спасибо за информацию! Будем ждать. Получается, нет 4-х комнатных квартир, евротрёшки максимум.
-
- Активный новичок
- Сообщения: 21
- Зарегистрирован: 15 июн 2020, 15:25
Москва. Ясеневая вл.14
#158Добрый день! Пришёл ответ с ДЖО об очередности.
2700 примерно в общей и 146 на момент признания внеочередником в 2018. Как вы думаете, есть шансы?
В ДЖО сказали маловероятно....
2700 примерно в общей и 146 на момент признания внеочередником в 2018. Как вы думаете, есть шансы?
В ДЖО сказали маловероятно....
Москва. Ясеневая вл.14
#159Судя по всему вас 5 и более членов семьи. Значит вам судя по схеме положена евротрёшка. По плану Их в доме по 2 на каждом этаже. Теперь умножьте 2 на количество этажей и количество домов. Но могут ещё дать 1+2ком.Добрый день! Пришёл ответ с ДЖО об очередности.
2700 примерно в общей и 146 на момент признания внеочередником в 2018. Как вы думаете, есть шансы?
В ДЖО сказали маловероятно....
Москва. Ясеневая вл.14
#160Трешек мало, так что многодетным наверняка будут предлагать и 2+2 и 2+1. Да и насколько я смог разглядетьЗначит вам судя по схеме положена евротрёшка.Добрый день! Пришёл ответ с ДЖО об очередности.
2700 примерно в общей и 146 на момент признания внеочередником в 2018. Как вы думаете, есть шансы?
В ДЖО сказали маловероятно....

Москва. Ясеневая вл.14
#161Тут может получиться вообще парадоксальная ситуация. Тк больших квартир мало то очередь внеочередников продвинется незначительно в то время как очередники стоящие на двушку могут многие получить тк квартир больше. В итоге очередник может обогнать внеочередника. В общем будем подождать). Запасаемся попкорном)
Москва. Ясеневая вл.14
#162Добрый день.Трешек мало, так что многодетным наверняка будут предлагать и 2+2 и 2+1. Да и насколько я смог разглядетьЗначит вам судя по схеме положена евротрёшка.Добрый день! Пришёл ответ с ДЖО об очередности.
2700 примерно в общей и 146 на момент признания внеочередником в 2018. Как вы думаете, есть шансы?
В ДЖО сказали маловероятно...., трешка меньше 90 квадратов (т.е. на 5 членов семьи например уже маловато, только если они не поставят на поток меньшую площадь предлагать, как ранее говорили)
Уругваец, вы тоже внеочередники? У вас 2018 или 2019 год признания?
Мы в 2018 признаны внеочередниками, говорят шансы есть.
Москва. Ясеневая вл.14
#163Добрый день, я, наверное, чего-то не понимаю, но какое значение в каком году стал льготником имеет значение, исчисление очереди ведь идет от даты постановки.
Москва. Ясеневая вл.14
#164Внеочередники, год постановки 2018. Насколько я знаю, исчисление очереди идет от даты постановки на учет, независимо от года получения льготы. Есть ли шансы, скоро станет понятно. Надеемся что есть... 

Москва. Ясеневая вл.14
#165Насколько я себе представляю схема распределения выглядит так: берём 2х воинов 2010 и 2015г постановки на учёт. В каждом году постановки своя очередь: внеочередники (у которых ещё своя подочередь по площади) и остальные с подочередью по площади. Те теоретически обычный очередник 2010г может получить жилье раньше внеочередника 2015г при условии одинаковых площадей. Внеочередник является таковым только в своём году признания. Если не прав поправьтеДобрый день, я, наверное, чего-то не понимаю, но какое значение в каком году стал льготником имеет значение, исчисление очереди ведь идет от даты постановки.
Москва. Ясеневая вл.14
#166Да, возможно я некорректно высказался - у нас 2018/2018.
Сколько ждут льготники, есть ли закрепленные нормы? (Понимаю, что вопрос скорее всего риторический, причём в отношении всех)....
И тоже желаю удачи многолетним ждунам....
Сколько ждут льготники, есть ли закрепленные нормы? (Понимаю, что вопрос скорее всего риторический, причём в отношении всех)....
И тоже желаю удачи многолетним ждунам....
Москва. Ясеневая вл.14
#167Навряд ли... Внеочередник на то он и внеочередник, что у них нет очереди как таковой. И ему обязаны распределить жилье первому. Но! Учитывая остальных внеочередников ( по дате признания и площади). Соответственно площадь большая, но могут быть вычеты метров, или наоборот ( полковник, другие статьи) добавка. Вот тут уже не так просто. ДЖО МОЖЕТ предложить 2 квартиры или меньшую площадь, уже на свое усмотрение, но не обязано. Отдать ВСЕ квартиры, или их определенный тип (допустим двушки) тоже нельзя, будут жалобы, да и очередь не сдвинется, а отчитываться нужно. Внеочередники то не стоят в очереди ( общей). И докладываются отдельным пунктом. Скорее схема будет выглядеть так: все квартиры, попадающие по площади для внеочередников им и распределят, согласно даты признания. Потом будут распределять по 2 квартиры "нестандартных" площадей, не попадающих для распределения для обычных ждунов по площади. Многие ждут ЛВБ, им будут предлагать перераспределение наверняка. Возможно льготникам и по схеме 3+1, 2+2, 2+1 обычных площадей будут, но не все квартиры. Поэтому обычная очередь продвинется, но незначительно. А так черт знает, что у них на уме, здравый смысл и МО это несовместимые понятия. Запасаемся попкорном....Насколько я себе представляю схема распределения выглядит так: берём 2х воинов 2010 и 2015г постановки на учёт. В каждом году постановки своя очередь: внеочередники (у которых ещё своя подочередь по площади) и остальные с подочередью по площади. Те теоретически обычный очередник 2010г может получить жилье раньше внеочередника 2015г при условии одинаковых площадей. Внеочередник является таковым только в своём году признания. Если не прав поправьтеДобрый день, я, наверное, чего-то не понимаю, но какое значение в каком году стал льготником имеет значение, исчисление очереди ведь идет от даты постановки.
Москва. Ясеневая вл.14
#168Почему нельзя отдать внеочередникам? Почему очередников льзя обеспечивать ранее внеочередников?QR_BBPOST Отдать ВСЕ квартиры, или их определенный тип (допустим двушки) тоже нельзя
На законном основании, в таком случае, могут быть только жалобы от внеочередников, если втиснут очередников. При этом смутно представляю, как обычный очередник будет владеть информацией о том, кому, когда и что распределили.QR_BBPOST будут жалобы
Отчитаются, не беспокойтесьQR_BBPOST а отчитываться нужно.


Москва. Ясеневая вл.14
#169Ну у Вас ответ на все случаи жизни
А почему ДЖО обязаны отдать все квартиры внеочередникам? Распределение 2 квартир нигде не определено, чисто на усмотрение ДЖО. Могут дать как очереднику по дате признания и площади (и внеочередник ничего не докажет) так и внеочереднику (2+1). Вот тут можно и оспорить попробовать. Они стоят на разные площади ЖИЛОГО ПОМЕЩЕНИЯ. На том основании, что внеочередник стоит на 90+ м, а очередник на 54+ допустим. И как угодить всем по площади? Как с доплатами быть? МО то не строило дома, и госконтракта на них нет очевидно, со стоимостью квадратного метра ( хотя хз). То, кому что распределили, узнают, не беспокойтесь) С последним пунктом полностью согласен. Мы просто вангуем, не более, а поступят они, как им скажет руководство, даже если это не совсем логично и законно будет, уверен. Так что ждём и надеемся. Я вот не надеюсь уже особо на эту Ясеневую, несмотря на довольно "старый" год признания относительно. И начну писать подряд во все инстанции, мож чёт выйдет. 23 года поднаем получать - за это тоже спросить можно.

Москва. Ясеневая вл.14
#170Патамушто они внеочередникиQR_BBPOST А почему ДЖО обязаны отдать все квартиры внеочередникам?

распределяют жилую площадьQR_BBPOST Распределение 2 квартир нигде не определено,

QR_BBPOST Могут дать как очереднику по дате признания и площади (и внеочередник ничего не докажет)
QR_BBPOST То, кому что распределили, узнают, не беспокойтесь

Никто и никому не угождает, всех отсылают на ........ к "АЛУШТЕ".QR_BBPOST И как угодить всем по площади?
Мы напишем в СПОРТЛОТО.QR_BBPOST И начну писать подряд во все инстанции, мож чёт выйдет
Москва. Ясеневая вл.14
#172Я как раз про это и говорил, что внеочередникам положено минимум 90квм а таких квартир на этаже всего две. С учётом 24 этажей получаем всего 144. Как поступит руководство хз. Могут по максимуму обеспечить внеочередников по схеме 2+1 и тд, а могут по максимуму сократить обычную очередь. И самое интересное, что в обоих случаях все будет законно.
Москва. Ясеневая вл.14
#173Так я про это тож и говорю, согласен. Учитывая, что квартир там не так уж и много, то будет именно Спортлото. Внеочередники моего года признания получили все давно, и почти все по схеме 2+1, 3+1 ( с согласия естественно). Но многие отказались, т.к. хотят жить в одной хате, дождались в других местах. Поживем- увидим.Я как раз про это и говорил, что внеочередникам положено минимум 90квм а таких квартир на этаже всего две. С учётом 24 этажей получаем всего 144. Как поступит руководство хз. Могут по максимуму обеспечить внеочередников по схеме 2+1 и тд, а могут по максимуму сократить обычную очередь. И самое интересное, что в обоих случаях все будет законно.
-
- Активный новичок
- Сообщения: 11
- Зарегистрирован: 13 сен 2020, 23:06
Москва. Ясеневая вл.14
#174Подскажите, кто знает, какая площадь однокомнатных квартир? Я так понимаю, их всего по три на этаже?)
-
- Активный новичок
- Сообщения: 11
- Зарегистрирован: 13 сен 2020, 23:06
Москва. Ясеневая вл.14
#176Я чего выше это не видел?! Все смазано( и что это за фальш-балконы?)Держите люди добрые план типового этажа:)
Москва. Ясеневая вл.14
#177Извиняюсь, не заметил, что было) это из проектной документации находил лично. Фальш-балконов нет, это схематическое изображение корзин кондиционеров
Москва. Ясеневая вл.14
#178В интернетах есть ещё другая схема, со студиями. Так там в трешках кухня находится в большой комнате, кухня-гостинная.
Москва. Ясеневая вл.14
#179Хм не знаю, что там еще за схема, лично еще в 19 году натыкался на проектную документацию по корпусам 6-8 и вот эта картинка оттуда) (живу в данном жк)В интернетах есть ещё другая схема, со студиями. Так там в трешках кухня находится в большой комнате, кухня-гостинная.
Вернуться в «ОБСТАНОВКА С ЖИЛЬЕМ ПО ГОРОДАМ»
Кто сейчас на конференции
Сейчас этот форум просматривают: Google и 19 гостей