Екатеринбург
#691
Здравствуйте! Подскажите как быть ,получил извещение с доплатой по адресу ул.Краснолесья 103,в извещении 61.7м.кв.,а на сайте академический 60.9, как узнать правду?
Кто знает дом ул.Краснолесья 103 уже сдан в оперативное управление или нет ? Может кто-то уже заключил ДСН?
Кто знает дом ул.Краснолесья 103 уже сдан в оперативное управление или нет ? Может кто-то уже заключил ДСН?
-
AN-12
- Активный участник
- Сообщения: 195
- Зарегистрирован: 05 мар 2011, 21:13
- Откуда: Екатеринбург AkademSiti
#692
Правду можете узнать в Управляющей компании, там есть все схемы планировок по каждому дому и по каждой квартире. А ДСНы ребята получают у меня есть сослуживцы которые получили ДСН на Краснолесья 103.
-
major56653
- Активный участник
- Сообщения: 155
- Зарегистрирован: 23 янв 2011, 10:54
Re:
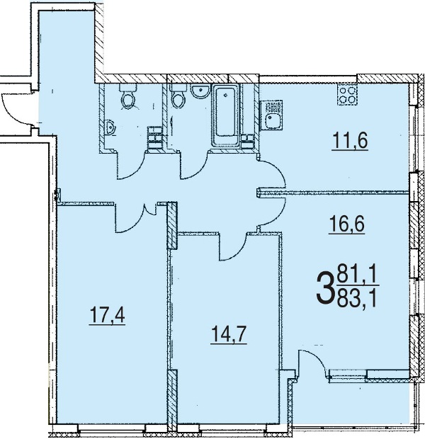
#693A из нашего окна-хата Ваша нам видна!Получил вчера извещение...пришлось отпрашиваться из госпиталя. И ехать к распоряженцу, ответственному за доведение распределение жилья в армии.а за 0,7 метров должны потребовать оплату
1. 80,7 кв.
2. договор найма буду подписывать в штабе 5 армии...???
Вот схема дома:
#694
а номер квартиры. я ПЕРВЫЙ из В/С кто въехал в 39 дом есть ? звони 9126316051Получил вчера извещение...пришлось отпрашиваться из госпиталя. И ехать к распоряженцу, ответственному за доведение распределение жилья в армии.
1. 80,7 кв.
Re: г. Екатеринбург
#695Увожаемая Елена Николаевна!Если есть у Вас возможность узнайте,пожалуйста, в ДЖО почему моё извещение №50296 от 06.09.2011 года до сих пор не отправленно в КЭЧ горда Красноярск? Или хотя бы какая сумма доплаты указанна в извещении. Заранее благодарна.Я в долгу не останусь!
Re: г. Екатеринбург
#696Уважаемая Елена Николаевна!Если есть у Вас возможность узнайте,пожалуйста, в ДЖО почему моё извещение №50296 от 06.09.2011 года до сих пор не отправлено в КЭЧ города Красноярск? Или хотя бы какая сумма доплаты указана в извещении. Заранее благодарна.Я в долгу не останусь!
Re: г. Екатеринбург
#697Просила Елену Николаевну узнать по своему извещению-уже не стоит волноваться:пришло оно ,наконец-то,в КЭЧ и сумма указана.В любом случае спасибо,что предлагаете помощь.Вчера легко дозвонилась до оперативного в Москве(он по жилищным проблемам).Бывают ещё порядочные люди-всё объяснил,подсказал...Кому нужен номер,то,пожалуйста,-84956965589.Ворос мой решился за 30 минут,а решала его 2 месяца.Огромное спасибо этому человеку!
#698
Съездил в Оренбург, казалось бы все справки строго по списку собрал, ан нет - надо справку из БТИ на девичью фамилию жены 
#699
ТочноСъездил в Оренбург, казалось бы все справки строго по списку собрал, ан нет - надо справку из БТИ на девичью фамилию жены
- Стингер133
- Активный участник
- Сообщения: 162
- Зарегистрирован: 12 апр 2011, 22:05
- Откуда: Екатеринбург
#701
Палыч , сын звонил , забыл сказать ему извещение и паспорт обязательно а то так придешь в УК скажут вы кто такой что бы посмотреть
никто кроме нас
- Стингер133
- Активный участник
- Сообщения: 162
- Зарегистрирован: 12 апр 2011, 22:05
- Откуда: Екатеринбург
#702
для Палыч (smirnov) вот ссылка на фото
http://img-fotki.yandex.ru/get/4613/268 ... e7cb_L.jpg
http://img-fotki.yandex.ru/get/4523/268 ... b8ae_L.jpg
http://img-fotki.yandex.ru/get/5412/268 ... b78d_L.jpg
http://img-fotki.yandex.ru/get/4711/268 ... 4e84_L.jpg
http://img-fotki.yandex.ru/get/4712/268 ... 4087_L.jpg
http://img-fotki.yandex.ru/get/5817/268 ... c806_L.jpg
http://img-fotki.yandex.ru/get/4416/268 ... cbf3_L.jpg
а это ниже фото 39 дома
http://img-fotki.yandex.ru/get/5311/268 ... 3806_L.jpg
крайние окна с боков и середина где не горит свет это квартиры МО РФ
http://img-fotki.yandex.ru/get/4613/268 ... e7cb_L.jpg
http://img-fotki.yandex.ru/get/4523/268 ... b8ae_L.jpg
http://img-fotki.yandex.ru/get/5412/268 ... b78d_L.jpg
http://img-fotki.yandex.ru/get/4711/268 ... 4e84_L.jpg
http://img-fotki.yandex.ru/get/4712/268 ... 4087_L.jpg
http://img-fotki.yandex.ru/get/5817/268 ... c806_L.jpg
http://img-fotki.yandex.ru/get/4416/268 ... cbf3_L.jpg
а это ниже фото 39 дома
http://img-fotki.yandex.ru/get/5311/268 ... 3806_L.jpg
крайние окна с боков и середина где не горит свет это квартиры МО РФ
никто кроме нас
#703
Краснолесья 121. Кто знает что за дом? В понедельник приеду забирать извещение на 2-ку, с доплатой в 551 тыс.р.
Где планировку посмотреть? Никак не могу найти.
Где планировку посмотреть? Никак не могу найти.
- Стингер133
- Активный участник
- Сообщения: 162
- Зарегистрирован: 12 апр 2011, 22:05
- Откуда: Екатеринбург
-
Палыч (smirnov)
#706
сКАН ИЗВЕЩЕНИЯ ОТПРАВИЛ ЭЛЕКТРОНКОЙ....сын звонил
Спасибо брат...хоть немного вошел в норму - первую неделю ходил как ошарашенный пустым мешком. Шутка ли почти семь лет воевал...а это ниже фото 39 дома
Закончу с ВВК, попробую в промежутке межу следующей операцией рвануть в отпуск на пару недель....проблема только в том, что скажет врач, потяну ли семейство - без сопровождения пока ни-ни и никак...одним словом попытаюсь. А пока готовлю доки
http://www.66.ru/realty/objects/163/Краснолесья 121.
http://images.yandex.ru/yandsearch?text ... rpt=simage
Добавлено спустя 6 минут 7 секунд:
Требовал признания нуждающимся в постоянном жилье с 2004 года...по причинам полной тогдашней юридической несостоятельности вынудили встать на ГЖС - ну многого не знал...да и просто боялся требовать. Добился официального признания только в 2008-ом. За Екатеринбург конкретно воевал с того же года...в реестре да и в ГлавКЭУ всегда стоял на Владивосток...впрочем данные не поменяли пока. Такая вот петрушка...с какого года Вы стоите на учете в реестре
- Стингер133
- Активный участник
- Сообщения: 162
- Зарегистрирован: 12 апр 2011, 22:05
- Откуда: Екатеринбург
- Стингер133
- Активный участник
- Сообщения: 162
- Зарегистрирован: 12 апр 2011, 22:05
- Откуда: Екатеринбург
#710
Нужен хороший адвокат по семейным делам в Екатеринбурге. Может кто делал решение суда по признанию членами семьи иждивенцев ? Подскажите адресок и телефончик. Пишите в личку.
-
Палыч (smirnov)
#713
Какая из них?во вложении план не 40 квартиры !!!!!40 лучше!!!!!
Добавлено спустя 3 минуты 31 секунду:
Ищущий да обрящет...Только там 3-х комн.
Прошу прощения
Как мне сказали ребята, уже живущие там, одинаковых планировок нет....
- Стингер133
- Активный участник
- Сообщения: 162
- Зарегистрирован: 12 апр 2011, 22:05
- Откуда: Екатеринбург
Re:
#714Какая из них?во вложении план не 40 квартиры !!!!!40 лучше!!!!!
Палыч привет! , вот эта -
http://img-fotki.yandex.ru/get/5820/268 ... 5997_L.jpg
никто кроме нас
#716
Подскажите а по поводу доплаты, немного не понял. Кто кому доплачивает? МО - военнослужащему или наоборот? Я так думаю что скорее всего наверное соглашаешься на квартиру меньшей площади чем тебе положено. А за остальные квадратные метры тебе доплачивает МО РФ. Так? Если не так поправьте. И сколько МО РФ начисляет за один квадратный метр интересно? И вообще не кинут в этом случае? В документах каких-то это прописано, для надежности?
-
major56653
- Активный участник
- Сообщения: 155
- Зарегистрирован: 23 янв 2011, 10:54
Re:
#717Партизанили в лесах?Подскажите а по поводу доплаты, немного не понял. Кто кому доплачивает? МО - военнослужащему или наоборот? Я так думаю что скорее всего наверное соглашаешься на квартиру меньшей площади чем тебе положено. А за остальные квадратные метры тебе доплачивает МО РФ. Так? Если не так поправьте. И сколько МО РФ начисляет за один квадратный метр интересно? И вообще не кинут в этом случае? В документах каких-то это прописано, для надежности?
Вот тут все подробно и ,наверно, интересно Вам будет!
Превышение метража в предоставляемом жилье
А меньшей площади Вам не предложат!
#719
А у нас представляете до сих пор на сайте извещение не появилось. Хотя мы уже произвели проплату и даже сегодня заключили договор соц. найма. 
Вернуться в «ОБСТАНОВКА С ЖИЛЬЕМ ПО ГОРОДАМ»
Кто сейчас на конференции
Сейчас этот форум просматривают: нет зарегистрированных пользователей и 113 гостей