Вы забыли главное отличие- бордюр/поребрик!( Вас в Питере не поймут!) Нумерация секций может не совпадать с номерами подъездов из-за разной планировки...( Имхо)[ref]Замзав[/ref], В чем отличие секции от подъезда? Это из области парадная-подъезд, шаверма-шаурма или что то существенный?
Москва, ул.Левобережная
Москва, ул.Левобережная
#49531Москва, ул.Левобережная
#49533Помогите разобраться: в одних схемах все стены несущие, в других стена между коридором и большой комнатой не несущая.
Москва, ул.Левобережная
#49534Дорогие соседи!
Хочу поделиться материалом, который, надеюсь, несколько умерит пыл некоторых активных, но доморощенных строителей-инженеров-проектировщиков...
"GTIxp 10.04.2015 «ответить»
Панельные дома бывают каркасными и бескаркасными. В первом случае панели крепятся на полный или внутренний каркас и чаще всего не являются несущими. Во втором -- основную нагрузку несут стены (дома собираются из них как карточные домики), причём в некоторых случаях только капитальные стены и перегородки между квартирами, а в некоторых ещё и межкомнатные перегородки.
Чтобы сносить стены по закону, необходимо в первую очередь обратиться в бюро технической инвентаризации (БТИ) за техпаспортом помещения.
Так вот - у нас кажется второй случай, поэтому сносить и перепланировать можно только с разрешения БТИ, иначе дом снимут с гарантии застройщика. Учитывая что дом и так очень высокий для панельного снос перегородки может закончиться обрушением дома/секции и кучей трупов..."
Желаю всем нам мудрости и здравомыслия!
Хочу поделиться материалом, который, надеюсь, несколько умерит пыл некоторых активных, но доморощенных строителей-инженеров-проектировщиков...
"GTIxp 10.04.2015 «ответить»
Панельные дома бывают каркасными и бескаркасными. В первом случае панели крепятся на полный или внутренний каркас и чаще всего не являются несущими. Во втором -- основную нагрузку несут стены (дома собираются из них как карточные домики), причём в некоторых случаях только капитальные стены и перегородки между квартирами, а в некоторых ещё и межкомнатные перегородки.
Чтобы сносить стены по закону, необходимо в первую очередь обратиться в бюро технической инвентаризации (БТИ) за техпаспортом помещения.
Так вот - у нас кажется второй случай, поэтому сносить и перепланировать можно только с разрешения БТИ, иначе дом снимут с гарантии застройщика. Учитывая что дом и так очень высокий для панельного снос перегородки может закончиться обрушением дома/секции и кучей трупов..."
Желаю всем нам мудрости и здравомыслия!
Москва, ул.Левобережная
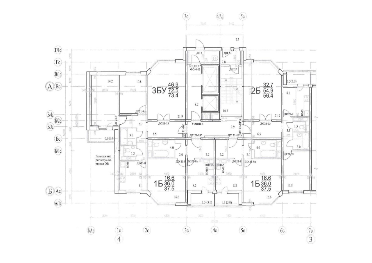
#49535Выходит в серии И155мк в трешке нелинейной 87.1м стену убрать между кухней и залом нельзя? Я правильно понял? Никто разрешение не даст?
-
Раиса Захаровна
- Постоянный участник
- Сообщения: 218
- Зарегистрирован: 07 дек 2010, 21:38
Москва, ул.Левобережная
#49536Нет. В серии МК есть только одна ненесущая стена - в коридоре в однушке. И, возможно, та же стена в объединенных трешках.Выходит в серии И155мк в трешке нелинейной 87.1м стену убрать между кухней и залом нельзя? Я правильно понял? Никто разрешение не даст?
Наши стены даже штробить-то нельзя, кроме установки подрозетника.
Москва, ул.Левобережная
#49537сразу извиняюсь, что не по теме!
Если у кого то есть знакомые, друзья кто получил квартиру в МЛЖ, и не доволен происходящим там.
я предлагаю метод решения проблемы это создание (межведомственная комиссия) МВК.
мне в суде отказано в моих требования даже без предоставления суду и мне каких либо подтверждающих документов и доказательств, в деле только отзыв от МО РФ, что у них все хорошо и законно. Если МО РФ думает, что переведя меня на ЖС они ушли от проблемы то нет.....
МОВС определил, что только создание МВК может решить вопрос, но при этом видимо не подумал, кто может создать МВК это или собственник кем я не являюсь, или надзорный орган.
Собственником помещения являются жители и не распределенных квартир и служебных МО РФ, МО РФ мне отказало в создании МВК.
что касается надзорных органов Роспотребнадзор и прокуратура также не хотят этого делать перекидывая все на МО РФ и Москву..... снова в суд? чтобы снова проиграть?
поэтому я ищу собственника кому не безразлична данная ситуация в микрорайоне для подачи заявления на создание МВК. все документы изучены, заявления составлены, подтверждающие документы нарушений имеются. пишите в личку или на почту RisevRA@yandex.ru.
Если у кого то есть знакомые, друзья кто получил квартиру в МЛЖ, и не доволен происходящим там.
я предлагаю метод решения проблемы это создание (межведомственная комиссия) МВК.
мне в суде отказано в моих требования даже без предоставления суду и мне каких либо подтверждающих документов и доказательств, в деле только отзыв от МО РФ, что у них все хорошо и законно. Если МО РФ думает, что переведя меня на ЖС они ушли от проблемы то нет.....
МОВС определил, что только создание МВК может решить вопрос, но при этом видимо не подумал, кто может создать МВК это или собственник кем я не являюсь, или надзорный орган.
Собственником помещения являются жители и не распределенных квартир и служебных МО РФ, МО РФ мне отказало в создании МВК.
что касается надзорных органов Роспотребнадзор и прокуратура также не хотят этого делать перекидывая все на МО РФ и Москву..... снова в суд? чтобы снова проиграть?
поэтому я ищу собственника кому не безразлична данная ситуация в микрорайоне для подачи заявления на создание МВК. все документы изучены, заявления составлены, подтверждающие документы нарушений имеются. пишите в личку или на почту RisevRA@yandex.ru.
Москва, ул.Левобережная
#49538Да есть мысль взять в соцнайм. .. но вот насчёт госфедер. собственности непонятно. Дома на земле Минобороны. Управляет минобороновское гуов. Передавать Москве не спешат. Если передадут то тоже собственник будет Москва , а не госфедер. Наниматель буду я. А если я выпишусь, то членов семьи как утративших связь с Минобороны выкинут и предоставят жильё очередному военнослужащему согласно очереди? А если поменяться захочу на неминобороновское социальное жильё в другом районе? У кого разрешение спрашивать? У Минобороны? А оно разрешит?В росреестре про квартиры на Левобережке написано: "Форма собственности - Государственная федеральная" - т.е. это собственность РОССИЙСКОЙ ФЕДЕРАЦИИ. А Российская Федерация (государство) передает свою собственность в оперативное управление своему "уполномоченному федеральному органу исполнительной власти - Минобороны". Т.е. государство управляет своей собственностью с помощью своих, государственных структур.Договор социального найма
Должен быть в госсобственности или муниципальной.
А разница большая.
Отправлено спустя 2 минуты 4 секунды:
Имеет ли вообще МО право передавать свою собственность в соцнайм?
А Минобороны назначает "управлять" этой федер. собственностью одну из своих структур (ФГКУ «СТУИО»). И одновременно, имея на эти действия доверенность от государства, Минобороны принимает решение о передаче распределенной Вам квартиры в Вашу собственность (этот факт Вы узакониваете при обращении в Росреестр, при этом квартира меняет форму собственности на "частную долевую").
Или - второй вариант - Минобороны сдает Вам квартиру по договору соцнайма (при этом квартира остается в гос. федер. собственности).
Как-то так оно сейчас....
Москва, ул.Левобережная
#49539что это?QR_BBPOST создание МВК
Вы ищете единомышленников без расшифровки аббревиатур. Не все в курсе.
Москва, ул.Левобережная
#49540(межведомственная комиссия)QR_BBPOST что это?
Вы ищете единомышленников без расшифровки аббревиатур. Не все в курсе.
Москва, ул.Левобережная
#49541думаю что нет. Предполагаю, что понятиеQR_BBPOST если я выпишусь, то членов семьи как утративших связь с Минобороны выкинут и предоставят жильё очередному военнослужащему согласно очереди?
связано с другим понятием "специализированный жилищный фонд":QR_BBPOST связь с Минобороны
Ст. 19 Жилищный фонд ЖКРФ:
Показать текст
Показать текст-
OVEL999
- Активный новичок
- Сообщения: 10
- Зарегистрирован: 15 ноя 2009, 03:31
- Откуда: Москва
- Контактная информация:
Москва, ул.Левобережная
#49542Подскажите, пожалуйста, кто оплачивал недавно доп метры, в каком банке можно оплатить без процентов?
-
Татянка123
- Участник
- Сообщения: 59
- Зарегистрирован: 01 июн 2016, 19:07
Москва, ул.Левобережная
#49544Оплатили не совсем недавно, почти год прошел. Банк ВТБ. У нас там зарплатный проект и сама девушка-инспектор-консультант подсказала, что компенсация затрат федерального бюджета идёт без комиссии.Подскажите, пожалуйста, кто оплачивал недавно доп метры, в каком банке можно оплатить без процентов?
- Metrolog791
- Постоянный участник
- Сообщения: 337
- Зарегистрирован: 16 окт 2014, 18:51
Москва, ул.Левобережная
#49545А какая сумма за квадратный метр указана в извещении?Подскажите, пожалуйста, кто оплачивал недавно доп метры, в каком банке можно оплатить без процентов?
Москва, ул.Левобережная
#49548Основная активность у корпусов 3-16-7-12и24:QR_BBPOST Что там со стройкой, ...13 что-то делается?
3-16к подготавливают территорию, выкладывают бордюрный камень, катают асфальт, отмостка у 16к выложена щебнем и на днях её "гладили/утрамбовывали", между корпусами вынут грунт для формирования места под проезжую часть;
7к очередное перемещение кран-стрелы, установлена сейчас между 7й и 8й секциями, вот и "прошла она" по всем точкам подъема материалов;
12к-24к продолжают лить стяжку, за 24к работы на теплотрассе;
на некоторых объектах работы идут и после 18.00;
со стороны Левобережной активности у 13к не видно.
-
Дмитрий_777
- Постоянный участник
- Сообщения: 486
- Зарегистрирован: 28 дек 2014, 12:31
Москва, ул.Левобережная
#49550[ref]Татянка123[/ref], а вам договор ДЖО выдавало или тольтко квитаецию?
Москва, ул.Левобережная
#49551Ну, в принципе-то можно, только наполовину, там где от прихожей, санузла - она не несущая (а толстую балконную стенку не трожьте, низзя). Только вот согласовывать - надо ? не надо? совсем не надо? и с кем надо?А в свечке в однушке можно стену между комнатой и кухней убрать?
Москва, ул.Левобережная
#49552...активности у 13к не видно................беда !!!!!!!!.......Основная активность у корпусов 3-16-7-12и24: ...............QR_BBPOST Что там со стройкой, ...13 что-то делается?
......со стороны Левобережной активности у 13к не видно.
Ну, к. 3 и 7 ГУОВцы всё ж таки сдадут к июлю. асфальт, газоны. плитка... ДолОжатся наверх, прокукарекают в СМИ... И - по привычке - ГУОВ в отпуск до октября? Тратить НАШИ деньги???????
К. 1(24), к. 4 на договорах с субподрядчиками, к.12 "не печет" потому что не распределен.....
А 4-я очередь даже нигде не упоминается - ни на госзакупках, ни в планах строителей, ни в сводках наблюдателей - коллег-новоселов....
НАДО уже встречу строителей с обманутыми воен-ждунами ! Гражданину Пастухову в глаза посмотреть, гражданину Поскотинову !!! А где там господин Т.Иванов с его обещаниями? В прошлом году в это время чего-то там обещал, и в Думе обещал. А в этом году почему ничего не обещает?
- Elena_Saga
- Участник
- Сообщения: 90
- Зарегистрирован: 25 сен 2014, 18:24
Москва, ул.Левобережная
#49553Ну, в принципе-то можно, только наполовину, там где от прихожей, санузла - она не несущая (а толстую балконную стенку не трожьте, низзя). Только вот согласовывать - надо ? не надо? совсем не надо? и с кем надо?А в свечке в однушке можно стену между комнатой и кухней убрать?
Да, все верно, балконную стенку трогать нельзя. Остальные стены внутри однушки в свечке - не несущие. Согласовывать, конечно, надо. Стандартная схема - сделать проект перепланировки, через "Мои документы" подать заявление о разрешении в "Мосжилинспекцию", получить разрешение, сделать ремонт и пригласить инспекторов для приемки.
Москва, ул.Левобережная
#49554А в этом году почему ничего не обещает?[/quote]
Ну идут же работы, медленно но идут...
Ну идут же работы, медленно но идут...
-
Татянка123
- Участник
- Сообщения: 59
- Зарегистрирован: 01 июн 2016, 19:07
Москва, ул.Левобережная
#49555Давало мужу соглашение подписать и квитанцию. В банк подавали только квитанцию. Там реквизиты, как объясняли, соответствующие. В квитанции было указано КБК и расшифровка: прочие доходы от компенсации затрат федерального бюджета. Такой вид платежа должен идти без комиссии. Но банки (либо отдельные сотрудники в силу своей компетенции не вникающий в такие тонкости) в большинстве случаев требуют комиссию. Нам повезло с сотрудником банка.[ref]Татянка123[/ref], а вам договор ДЖО выдавало или тольтко квитаецию?
- Metrolog791
- Постоянный участник
- Сообщения: 337
- Зарегистрирован: 16 окт 2014, 18:51
Москва, ул.Левобережная
#49556А вам случайно никаких НПА по этому вопросу не называли ,ищу в просторах интернета ничего похожего не нахожуДавало мужу соглашение подписать и квитанцию. В банк подавали только квитанцию. Там реквизиты, как объясняли, соответствующие. В квитанции было указано КБК и расшифровка: прочие доходы от компенсации затрат федерального бюджета. Такой вид платежа должен идти без комиссии. Но банки (либо отдельные сотрудники в силу своей компетенции не вникающий в такие тонкости) в большинстве случаев требуют комиссию. Нам повезло с сотрудником банка.[ref]Татянка123[/ref], а вам договор ДЖО выдавало или тольтко квитаецию?
-
Татянка123
- Участник
- Сообщения: 59
- Зарегистрирован: 01 июн 2016, 19:07
Москва, ул.Левобережная
#49557Вот даже если и называли тогда, сейчас уже не вспомню. Но это же пополнение бюджета, равно как и налоги. Вы же не платите комиссию при оплате налогов. Так и тут. Могу сказать филиал банка и ФИО инспектора (не реклама). Банк на ул.проспект Вернадского, 29. Сотрудник Ковалева Любовь (во втором окошке была)А вам случайно никаких НПА по этому вопросу не называли ,ищу в просторах интернета ничего похожего не нахожуДавало мужу соглашение подписать и квитанцию. В банк подавали только квитанцию. Там реквизиты, как объясняли, соответствующие. В квитанции было указано КБК и расшифровка: прочие доходы от компенсации затрат федерального бюджета. Такой вид платежа должен идти без комиссии. Но банки (либо отдельные сотрудники в силу своей компетенции не вникающий в такие тонкости) в большинстве случаев требуют комиссию. Нам повезло с сотрудником банка.[ref]Татянка123[/ref], а вам договор ДЖО выдавало или тольтко квитаецию?
-
Дмитрий_777
- Постоянный участник
- Сообщения: 486
- Зарегистрирован: 28 дек 2014, 12:31
Москва, ул.Левобережная
#49558Без толстых балконных стенок не получится одной большой комнатище в однушке. Смысла тогда нету мне заморачиваться.
Москва, ул.Левобережная
#49559https://kazanfirst.ru/posts/465964
Прокуратура Чистополя заинтересовалась директором местной ООО «УК «Наш дом», который отказался предоставить жителям информацию, сообщает пресс-служба надзорного ведомства РТ.
После проверки против него возбуждено дело об административном правонарушении.
Прокуратура Чистополя заинтересовалась директором местной ООО «УК «Наш дом», который отказался предоставить жителям информацию, сообщает пресс-служба надзорного ведомства РТ.
После проверки против него возбуждено дело об административном правонарушении.
- mr.tolikbaltik
- Участник
- Сообщения: 41
- Зарегистрирован: 23 авг 2017, 20:29
Москва, ул.Левобережная
#49560Откуда дровишки? В смысле откуда информация? Если про 3 корпус ( путаница с площадями и прочее) правда самое время напомнить ГУОВУ и другим приближенным к стройке лицам о себе. Я человек сугубо мирный, скандалов не люблю. Митингов тоже. И демонстрации мне нравятся только на конкурсах красоты. Но если надо то могу и напомнить. Да! Уважаемый правдоруб 2 , не знаю куда делся правдоруб 1 ( только бы не раздвоение личности и ваш номер не означает двойную игру) и все таки про 3 корпус все точно? Если точно чего мы тогда ждём? Давайте сходим на стройку и поговорим. Раньше ГУОВ как то сам инициировал подобные встречи, а теперь что то притух, искры не хватает? Не проблема, принесём, раздуем!
Вернуться в «ОБСТАНОВКА С ЖИЛЬЕМ ПО ГОРОДАМ»
Кто сейчас на конференции
Сейчас этот форум просматривают: нет зарегистрированных пользователей и 20 гостей